White Door Architects wint ontwerpwedstrijd van Maastricht-LAB

White Door Architects, een jong, klein architectenbureau uit Lanaken en Maastricht, heeft een prijsvraag in Maastricht gewonnen, georganiseerd door Maastricht-LAB. Dat deden ze met 'Please, allow me to introduce myself', een licht en ruimtelijk ontwerp dat binnen en buiten met elkaar verbindt.

Maastricht-LAB, door de gemeente opgericht in 2012, moet een nieuwe impuls geven aan de stedelijke (her)ontwikkeling van de stad. Het lab organiseerde daarom een wedstrijd voor een woningontwerp in de wijk ‘Ambyerveld’. Doel: een bijdrage leveren aan de verkoop van de kavels en de keuze voor zelfbouw in Ambyerveld bevorderen en vergemakkelijken, en dat door inspirerende woningontwerpen te presenteren. De jury koos uit inzendingen uit heel Nederland drie winnaars uit, met het ontwerp van White Door Architects op de eerste plaats.

 

Licht en ruimtelijk

“Space and light and order.
Those are the things that men need just as much as they need bread or a place to sleep.” (Le Corbusier)

“I think that the ideal space must contain elements of
magic, serenity, sorcery and mystery.” (Luis Barragan)

De uitspraken van Le Corbusier en Luis Barragan vatten volgens Maarten Huls, architect bij White Door Architects, kort maar duidelijk samen wat zijn bureau belangrijk vindt in het ontwerp van een woning. “Maak een licht en ruimtelijk huis. Maak een huis dat binnen en buiten met elkaar verbindt. Maak een huis dat ruimten definieert, maar ze niet isoleert. Maak een huis dat functioneel is, maar ook sensueel en maak een huis vol verrassingen.”

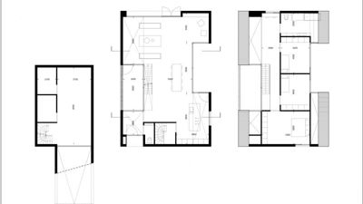
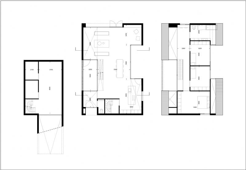
Dat abstracte verhaal zie je ook terug in de opbouw van de woning. De strategische positionering van insnijdingen vormt de functionele gebruiksruimtes binnen het bouwvlak. Die ruimtes staan op zichzelf, maar blijven toch altijd in contact met de overige ruimten, zowel horizontaal als verticaal. De insnijdingen brengen eveneens de tuin naar binnen en maken er een kamer binnen de woning van. Ze zijn volledig van glas en laten een overvloed aan licht binnen zonder dat de privacy verloren gaat.

De verdieping met slaapvertrekken hangt als een vrij blok boven de begane grond en staat er via de gangzone in directe verbinding mee. Vanuit het oogpunt van duurzaamheid, wooncomfort en bouwsnelheid kozen de architecten tenslotte voor houtskeletbouw, in combinatie met dunne witte houten latjes als gevelmateriaal. Dat versterkt enerzijds de eenduidige verschijningsvorm van de woning en is anderzijds een tactiel materiaal.

  • Deel dit artikel

Onze partners