Wonen in een villa op de Maas
Mensen die zich zorgen maken over het smelten van de ijskappen en de mogelijke overstroming van delen van Nederland en België kunnen vanaf nu op hun beide oren slapen. In het Nederlandse Ohé en Laak werden afgelopen maand vier op het water drijvende villa’s neergelaten in de Maas. Deze woningen maken deel uit van het ‘Bouwen op het Water’- project van bouwconcern Dura Vermeer en zijn de eerste in een reeks van 32 villa’s op deze locatie. Ohé en Laak vormen samen het zuidelijke deel van het zogenaamde Eiland in de Maas, gevormd door twee armen van de gelijknamige rivier, gelegen in Midden-Limburg vlakbij de Belgische grens.
Dura Vermeer is met deze Maasvilla’s niet aan zijn proefstuk toe. Zij ontwikkelden al 14 drijvende en 32 amfibische woningen in Maasgommel in Gelderland in samenwerking met Boiten Raadgevende Ingenieurs en Factor Architecten.

Drijfvilla’s en amfibische woningen
De Maasvilla’s bestaan uit een betonnen drijflichaam inclusief casco en wegen ongeveer 100 ton per stuk. Dit drijflichaam rust op betonnen palen en de woningen hebben op het water een diepgang van anderhalve meter. Het verschil tussen de drijfvilla’s en de amfibische woningen is dat deze laatste enkel bij hoog water effectief beginnen te drijven. Bij een normale waterstand rusten deze amfibische woningen op funderingspalen. Dit betekent dat zij een aantal keer per jaar van hun fundering zullen loskomen en gaan drijven. Uiteindelijk zakken zij terug op hun vaste funderingsplek doordat ze verankerd zijn aan daartoe ontworpen geleidingspalen. Dankzij deze palen kunnen de amfibische woningen een fluctuatie in waterstand van acht meter overbruggen.
De twee drijfvilla’s drijven permanent en bevinden zich wat verder langs de dijk aan een steiger die met de villa’s mee beweegt. Zij worden op hun beurt door stevige verankeringspalen op hun plaats gehouden.

Een technisch hoogstandje
Het technische aspect van deze woningen is van essentieel belang. Dit is immers niet te vergelijken met normale woningbouw. De villa’s hebben naar buiten gerichte diagonale ontwerplijnen en liggen trapsgewijs voor en naast elkaar om het uitzicht zowel bij laag- als hoogwater niet te belemmeren.
De woningen zijn opgetrokken op een betonnen drijfbak met een houtskelet opbouw. Vooraf werden evenwichtsberekeningen uitgevoerd zodat ze vrijwel waterpas komen te liggen. De villa’s zijn met elkaar verbonden door middel van steigerconstructies. Om toegang tot de steigers te krijgen wordt gebruik gemaakt van flexibele brugconstructies. Om wegdrijven te voorkomen worden de villa’s verankerd aan twee stalen geleidepalen, gecombineerd met een koppelconstructie. Langs de steigers is ook de mogelijkheid gelaten voor het verankeren van boten.
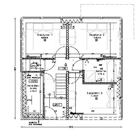
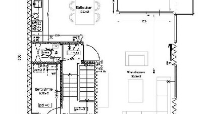
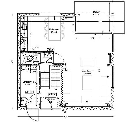
Beneden wonen en boven slapen
Elke villa beschikt over twee ruime verdiepingen. Beneden bevindt zich het slaapgedeelte en mede vanwege het uitzicht bevindt het woongedeelte zich op de bovenverdieping. Boven is de woning voorzien van een woonkamer, keuken en boven het water uitstekend balkon. Beneden bevinden zich 3 tweepersoonsslaapkamers, een badkamer en een tweede toilet. De benedenverdieping bevindt zich gedeeltelijk onder de waterlijn om het maritieme gevoel te versterken. Met de waterdichte betonconstructie wil Dura Vermeer optimale veiligheid garanderen.


Het EMAB-project
De gemeente Maasgouw, waar de villa’s zijn te water zijn gelaten, maakt deel uit van de vijftien zogenaamde EMAB (Experimenteren Met Aangepast Bouwen)-locaties, waar mag worden geëxperimenteerd met buitendijks wonen. Dit is aan zeer strenge eisen onderworpen. Zo moet er een substantiële bijdrage geleverd worden aan de verlaging van opstuwing in de Maas bij hoogwater.
Het beheer van de villa’s is in handen van Eldorado Parken, de organisatie die ook de nabijgelegen camping en jachthaven beheert. De Maasvilla’s zijn in de eerste plaats bestemd als vakantiewoning voor particulieren. Vanaf 2012 zullen ze verkocht worden aan hun nieuwe eigenaars.