Wonen langsheen de Kanaalsite: Bogdan & Van Broeck (2)

Op de Kanaalsite in Wijnegem zullen verschillende architectenbureaus gebouwen omvormen tot kwaliteitsvolle woon- en werkplekken. In deze eerste aflevering stellen we u de gebouwen ontworpen door Bogdan & Van Broeck Architects voor.

Op de Kanaalsite in Wijnegem zullen verschillende architectenbureaus gebouwen omvormen tot kwaliteitsvolle woon- en werkplekken. In deze eerste aflevering stellen we u de gebouwen ontworpen door Bogdan & Van Broeck Architects voor.


 


Woningen met identiteit

De doelstelling van het Kanaalproject is volgens de ontwikkelaars een “pure en menselijke architectuur met respect voor het historische karakter van de site en voor de wensen van zijn toekomstige bewoners”. Mede hierdoor omvat de Kanaalsite een honderdtal appartementen waarvan niet één gelijk is. Hierin heeft ook elke kamer zijn eigen identiteit. 

Aangezien het ontwerp van elke woning gebaseerd is op de beleving van binnenuit, is ieder plan anders. Ook de wisselwerking tussen kamers, zowel naar binnen als buiten toe, garandeert dat elke bewoner zijn eigen karaktervolle stek kan creëren. Wel werden per deelgebied een aantal basisconcepten uitgezet die zowel de architectuur als de woonruimte bepalen.




Bogdan & Van Broeck Architects

Binnen de Kanaalsite ontwerpt het bureau Bogdan & Van Broeck Architects diverse gebouwen: de Cubes, de Ateliers en Museum Vervoordt Foundation.


Rooms with a view

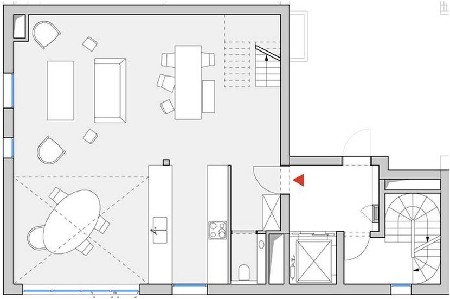
Het woningenluik dat Bogdan & Van Broeck Architects ontworpen heeft kreeg de naam ‘Cubes’ mee. Elke woning hierin heeft minstens drie gevels met een loggia die fungeert als buitenruimte, bereikbaar vanuit de gehele woning. Tevens tracht het project maximaal in te spelen op de sterke punten van de omgeving: de ligging langsheen het water en de relatie tot het industriële erfgoed op de site door gebruik te maken van weloverwogen zichtassen. Tegelijkertijd wordt er gestreefd naar een harmonische relatie tussen de private en de publieke ruimte. Daartoe zijn zorgvuldig gekozen openingen tussen de volumes gelaten die zorgen voor ingekaderde doorzichten naar de bestaande gebouwen, naar de silo's, naar het water en naar de tussenliggende pleinen. Dit leidt tot het kernbegrip van dit ontwerp: "rooms with a view".


 


Architectuur wordt hier bedacht als venster op de wereld. Dit principe wordt door de architecten toegepast op verschillende schaalniveaus. Stedenbouwkundig zijn de ruimtes tussen de gebouwen bedacht als buitenkamers met doorzichten naar elkaar en de omgeving. Architecturaal is de distributie van functies binnen de woningen en de positie van de raamopeningen zodanig ontworpen dat opnieuw optimaal wordt ingespeeld op uitzichten en de bezonning, evenwel met behoud van privacy.

Grote hoge beglaasde loggia's zorgen in elke woning voor een ruime inpandige wintertuin en een overvloedige aanwezigheid van daglicht. Door de variaties in planvorm en type, door de aparte geveluitwerking van elke woning is elke Cube een uniek en herkenbaar onderdeel binnen een groter samenhangend geheel.


 


De Cubes: een venster op de wereld

Wanneer we de Cubes van dichtbij gaan bekijken, blijkt dat Bogdan & Van Broeck Architects de klassieke elementen van grondgebonden huizen importeerden in de verdichte typologie van het appartement.
Zo beschikt iedere woning in de Cubes over een loggia met een inpanding terras met raam van 5m hoog en 4m breed dat volledig opengaat.


    

 

 

Tegelijk streeft Bogdan & Van Broeck Architects naar een harmonische relatie met de omgeving. Daartoe laten ze zorgvuldig gekozen openingen tussen de volumes die zorgen vooringekaderde doorzichten naar de andere gebouwen, naar Anish Kapoor's "At the Edge of the World", naar het water en naar de tussenliggende pleinen en doorsteken. De Cubes zijn essentieel ontworpen als "rooms with a view", als vensters op de wereld.


 

Vervoordt Foundation

Naast de woningen in de Cubes ontwerpen Bogdan & Van Broeck Architects ook de zogenaamde Vervoordt Foundation op de Kanaalsite. De Vervoordt Foundation is de beheerder van een belangrijke kunstverzameling die bestaat uit tal van antiquiteiten evenals enkele belangrijke hedendaagse werken en oefent wereldwijd functies uit als curator alsook onderwijsactiviteiten. Werkend vanuit Kanaal, zal de Stichting gehuisvest worden in haar eigen museum, ontworpen door Bogdan & Van Broeck Architects.


 

Reeds in het jaar 2000 heeft Axel Vervoordt besloten om de oude mouterij een nieuw hart te geven met de installatie van het kunstwerk van Anish Kapoor met de titel "At the Edge of the World". De Vervoordt Foundation engageert zich in het zoeken naar het universele in kunst door het ontdekken van de eigentijdse kwaliteit van het verleden en het zoeken naar hedendaagse objecten met een tijdloze kwaliteit.

 

Nieuwe ateliers

Tenslotte ontwerpen Bogdan & Van Broeck Architects op de site ook nieuwe ateliers. De kunsthandel Axel Vervoordt blijft in het gebouw waar het nu zit, dat tevens de kantoren van projectontwikkelaar Vervoordtr.e. huisvest.

De ateliers echter verhuizen naar een nieuwbouwcomplex tussen de Toren en deArtist Studios aan de andere kant van de Kanaalsite.


 


  • Deel dit artikel

Onze partners