Wonen langsheen de Kanaalsite: Cousée en Gooris (4)
Op de Kanaalsite te Wijnegem nemen verschillende architectenbureaus diverse gebouwen onder handen om deze om te vormen tot kwaliteitsvolle woon- en werkplekken. In deze vierde aflevering nemen we u mee naar de ontwerpen van Coussée & Goris.

Binnen het omvangrijke Kanaalproject, een realisatie van de firma Vervoordt, geven Coussée & Goris meerdere gebouwen, waaronder het Eschergebouw, de Pakhuizen, het Waterhuis en de Artist studios, een nieuwe betekenis.
Escher: Wonen bovenop de oude distillerie
De oude distilerie is een monumentale rechthoekige hal die dienst doet als polyvalente ruimte. Omwille van de grote ronde gaten tussen de verdiepingen, die overbleven na de ontmanteling van de vroegere moutketels die doen denken aan de bizarre architecturale tekeningen van de Nederlandse kunstenaar M.S. Escher, werd dit project omgedoopt tot het Eschergebouw.

Het karaktervolle gebouw wordt volledig gerespecteerd in zijn historische eigenheid. Om woongelegenheid te creëren, realiseren Coussée & Goris bovenop de massieve onderbouw een nieuw, modern volume, dat er uitziet als een galerij, een loggia, met hoge kolommen dicht bij elkaar. De opbouw wordt geconcipieerd in een staalconstructie die als het ware de bestaande dominante baksteenvolumes bekroont. De Pakhuizen en het Waterhuis worden volgens hetzelfde principe gerenoveerd.

Pakhuizen
Niet alleen het Eschergebouw zal woningen huisvesten, ook de bestaande pakhuizen langs de Stokerijstraat worden omgebouwd tot unieke woningen met zowel in de gerestaureerde als nieuwe delen zichten naar de binnenpleinen, het water en Stad Antwerpen. De verschillende pakhuizen voorzien in totaal 21 appartementen.
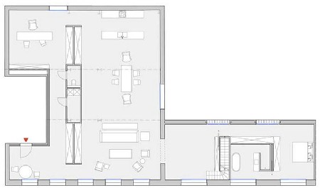
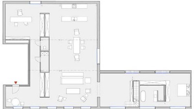
Respect voor de bestaande volumes betekent dat er geen indelingen worden gemaakt die ruimtes in kleinere gehelen opdelen. Dit maakt dat bepaalde ruimtes hun oorspronkelijke afmetingen behouden, hierdoor bieden de Pakhuizen een unieke woonbeleving. De basishouding bij de reconversie van de bestaande gebouwen was steeds dat er een functie moest gevonden worden die de gebouwen zou doen herleven. Er is gekozen voor woonfuncties op de verdiepingen en een werkfunctie op het gelijkvloers.

De pakhuizen.
De charme van het historische monument met zijn diversiteit aan oude ruimten blijft bewaard. De authenticiteit wordt zelfs nog versterkt door het verwijderen van alle verbouwingen en toevoegingen die er door de jaren heen bij kwamen, en door het toevoegen van nieuwe contrasterende elementen. Het gebouwencomplex wordt helemaal uitgezuiverd en de oude gevels komen weer vrij. De oorspronkelijke, nog zichtbare openingen worden terug opengemaakt. Waar nodig voor de nieuwe functies van het gebouw worden nieuwe openingen gecreëerd, eenvoudig en krachtig geïntegreerd in het ritme van de bestaande openingen. Door het wegnemen van een aantal gebouwen komen enkele binnengebieden vrij. Zo ontstaan er kleine pleinen en doorsteken die de oorspronkelijke gebouwen weer van licht en lucht voorzien.

Op het gelijkvloers bevatten de Pakhuizen ruimtes voor handel en diensten. De openheid van de bestaande grote ruimtes wordt behouden en geïntegreerd in de nieuwe functies: zo herwinnen de verrassende ruimtekwaliteiten hun volle waarde.
De woonfunctie komt in een nieuw volume bovenop de bestaande bakstenen gebouwen, waardoor een gelaagde ruimtelijkheid ontstaat. Coussée & Goris concipiëren de nieuwe woongelegenheid, in het verlengde van Escher en het Waterhuis, als loggia's van dicht bij elkaar staande kolommen. De constructie van stalen pijlers en glas introduceren een moderne frisheid en creëren een boeiend spel van schaduwen, in contrast met het monolithische karakter van de bakstenen onderbouw.
Waterhuis: een volledige nieuwbouw
Tussen Escher en de Pakhuizen staat het Waterhuis. De drie grote volumes bepalen samen het straatbeeld vanuit de Stokerijstraat, en worden door Coussée & Goris ontwikkeld als één geheel. Het Waterhuis voorziet 15 appartementen vanaf het 1ste verdiep tot het 5de met oppervlaktes van 148m² tot 180m².

Het Waterhuis wordt, in tegenstelling tot en als contrast met de andere industriële gebouwen van de Kanaalsite, volledig nieuw gebouwd. Het gebouw bestaat uit een constructie van dicht bij elkaar staande stalen kolommen en bevat hedendaagse appartementen die baden in zon en licht door de hoge ramen. Het ontwerpconcept ligt in lijn met de bovenbouwen die Coussée & Goris als loggia creëren bovenop Escher en de Pakhuizen die samen het Waterhuis insluiten.
Artist studio's
Het is de bedoeling van de ontwikkelaars dat de Kanaalsite een aantrekkingspool wordt voor kunstenaars en ambachten die er zich laten inspireren door het contrast tussen industrieel erfgoed en moderne renovaties, door het water en het groen, en door de cultuur en esthetiek die alomtegenwoordig is. Daarom mochten Coussée en Goris op de Kanaalsite tevens een complex met diverse Artiestenstudio’s uitdokteren. Dit gebouw zal gerealiseerd worden op de hoek van de Stokerijstraat, in het verlengde van de Pakhuizen en naast een bestaande kapel.
