Woonproject Vijfhoek in Liedekerke: dorpskernverdichting met gedeelde meerwaarde (Luchtschip Architectuur)

  • image
  • image
  • image
  • image
  • image
  • image
  • image
  • image
  • image
  • image
  • image
  • image
  • image
  • image
  • image
  • image
  • image
  • image
  • image
  • image
  • image
  • image
  • image
  • image

Een broer en zus, samen met haar echtgenoot, klopten aan bij het Gentse ontwerpbureau Luchtschip Architectuur met een duidelijke ambitie: hun afgeleefde ouderlijk huis in het centrum van Liedekerke herdenken als een plek waar ze elk, in een eigen woning, samen oud kunnen worden. Ze wilden kleiner wonen, maar zonder afstand te doen van wat voor hen essentieel was: voldoende buitenruimte, een moestuin en de mogelijkheid om dagelijkse taken te delen. Alle drie, bijna zeventig, kozen bewust voor het dorpscentrum en de nabijheid van voorzieningen en helpende handen.

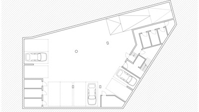
De bestaande woning met aanbouwen stond op een groot maar complex perceel. Het terrein sluit met een scherpe hoek aan op de Vijfhoekstraat en strekt zich langwerpig uit naar achteren, waardoor de gevellengte aan de straatzijde beperkt blijft. De totaal verloederde staat van de bebouwing en de aanzienlijke oppervlakte van het terrein brachten bouwheer, architect en stedenbouwkundige diensten ertoe om het project ruimer te bekijken en een verdichtingsstrategie te onderzoeken.

Van ouderlijk huis naar cohousingproject

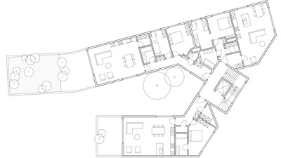
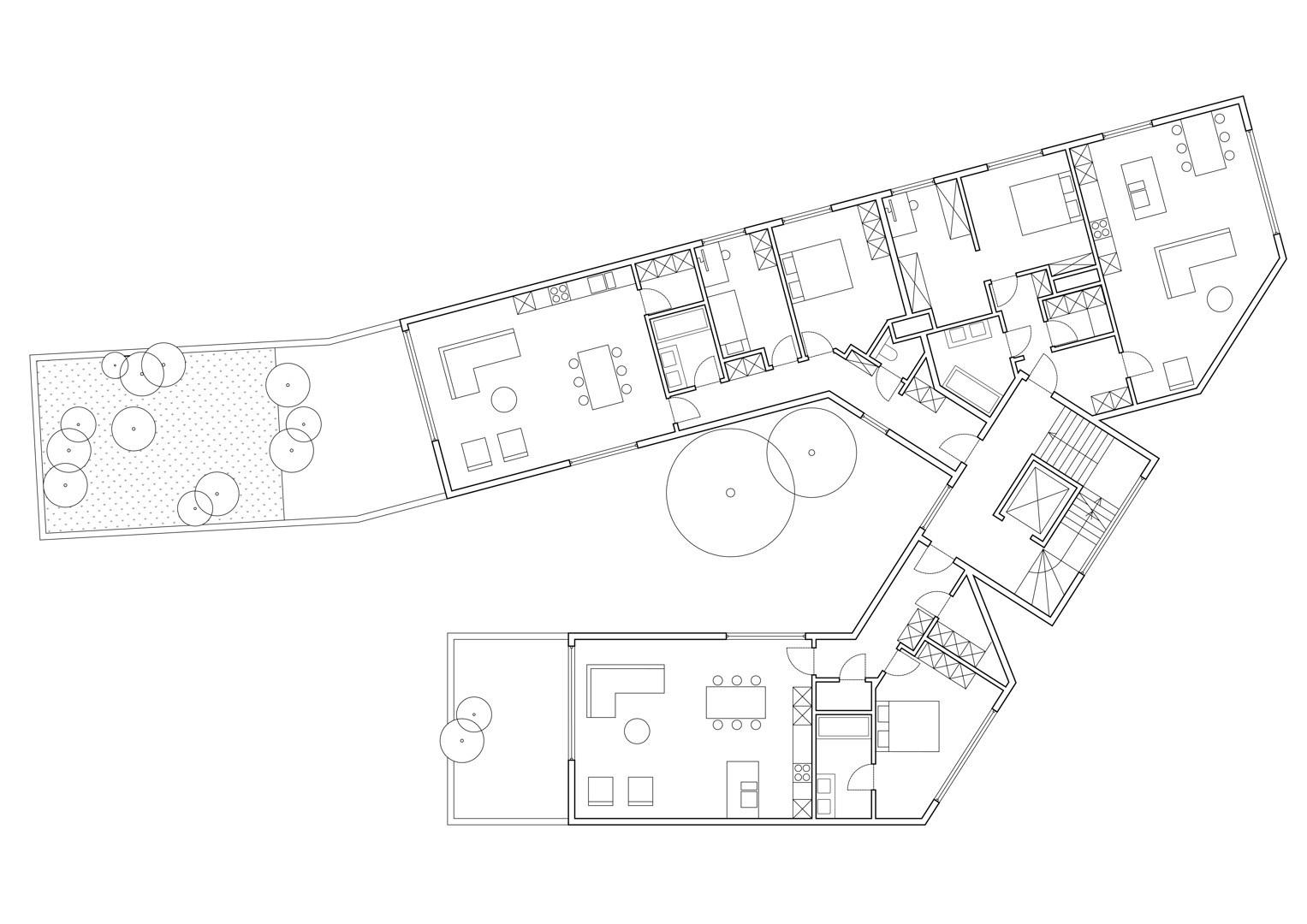
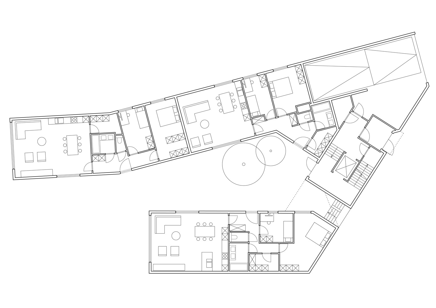
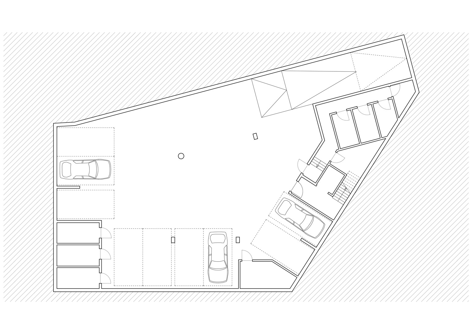
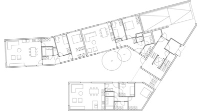
In plaats van één woning te renoveren, tekende Luchtschip een project met zeven appartementen, geschikt in een U-vorm rond een gemeenschappelijk binnengebied en een gedeelde tuin. De grote terrassen worden ingericht als daktuinen en trapsgewijs naar de achtertuin georganiseerd. Het geheel transformeert tot een cohousingproject waarin de (moes)tuin, patio, ondergrondse parkeergarage, circulatie en fietsenstalling gedeeld worden.

Om aan te sluiten bij de schaal van de straat met haar rijwoningen wordt de voorgevel opgeknipt in drie delen. Het hoogste volume bevindt zich op de hoek van het perceel, het verst van de bestaande bebouwing, waaraan qua hoogte wordt aangesloten. Terwijl de appartementen zich volledig op het achterliggende binnengebied richten, krijgt de straatzijde een meer gesloten karakter met enkele zorgvuldig geplaatste, substantiële raamopeningen.

Verdichting met ruimtelijke kwaliteit

Op het niet voor de hand liggende perceel maakt één afgeleefde woning zo plaats voor zeven cohousingunits. Het plan is zo opgebouwd dat voldoende terreinoppervlakte onbebouwd blijft, waardoor licht en zicht diep in het project kunnen doordringen. De centrale patio en de gedeelde tuin structureren het geheel en zorgen ervoor dat de densiteit gepaard gaat met ruimtelijke ademruimte.

Ook de stedenbouwkundige draagkracht van het terrein werd in dat proces herbekeken. Waar initieel twee bouwlagen met hellend dak en een beperkt aantal grondgebonden woningen werden vooropgesteld, toonde het ontwerp aan dat een hogere densiteit mogelijk was zonder de schaal van de straat uit het oog te verliezen. Zo werd een evenwicht gevonden tussen verdichting en inpassing in de bestaande context.

Maatschappelijke relevantie en technische precisie

Naast de architecturale inpassing speelde de maatschappelijke relevantie een doorslaggevende rol. Het project speelt in op een groeiende behoefte: ouderen die hun ruime woning aan de dorpsrand willen inruilen voor een appartement in de kern, met gedeelde voorzieningen maar zonder in te boeten op private buitenruimte en comfort. Vijfhoek wil aantonen dat compacter en dichter wonen architecturaal aantrekkelijk kan zijn en wil afrekenen met vooroordelen rond klassieke projectontwikkeling.

De complexiteit van het grondplan en het grote geveloppervlak, noodzakelijk voor privacy, licht en zicht, brengen een meerkost met zich mee. Die wordt gecompenseerd door voor alle gemene delen het principe ruwbouw = afbouw toe te passen, wat een doorgedreven coördinatie op de werf en vakmanschap vraagt. Op energetisch vlak werd niet bespaard: geothermie, balansventilatie, intensieve groendaken en doorgedreven regenwaterrecuperatie maken integraal deel uit van dit kleinschalige maar ambitieuze project.

Bron Luchtschip Architectuur

  • Deel dit artikel

Onze partners