Woonwerk revitaliseert Antwerpse Schipperskwartier met robuust en groen woonproject in Oudemansstraat

  • image
  • image
  • image
  • image
  • image
  • image
  • image
  • image
  • image
  • image
  • image
  • image
  • image
  • image
  • image
  • image
  • image
  • image
  • image
  • image
  • image
  • image

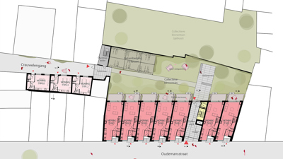
In opdracht van AG Vespa en in samenwerking met bouwbedrijf Gillion Construct transformeerde Woonwerk architecten een voormalig nachtclubpand en enkele oude woningen in het Antwerpse Schipperskwartier tot een eigentijds woonproject. Deze ingreep maakt deel uit van de bredere revitalisatie van de wijk, die in volle transitie is van prostitutiezone naar gemengde stadsbuurt.

Op de site, gelegen aan de Oudemansstraat en de Crauwelengang, realiseerden de ontwerpers compacte, betaalbare woningen met een uitgesproken stedelijke uitstraling. Aan de straatzijde versterkt een robuust gevelraster met metselwerk en houten schrijnwerk het ritme van de buurt, terwijl aan de achterzijde een slanke staalstructuur een collectieve binnentuin inkadert. Daarmee krijgt het binnengebied een onverwacht groene en open dimensie, midden in de stad.

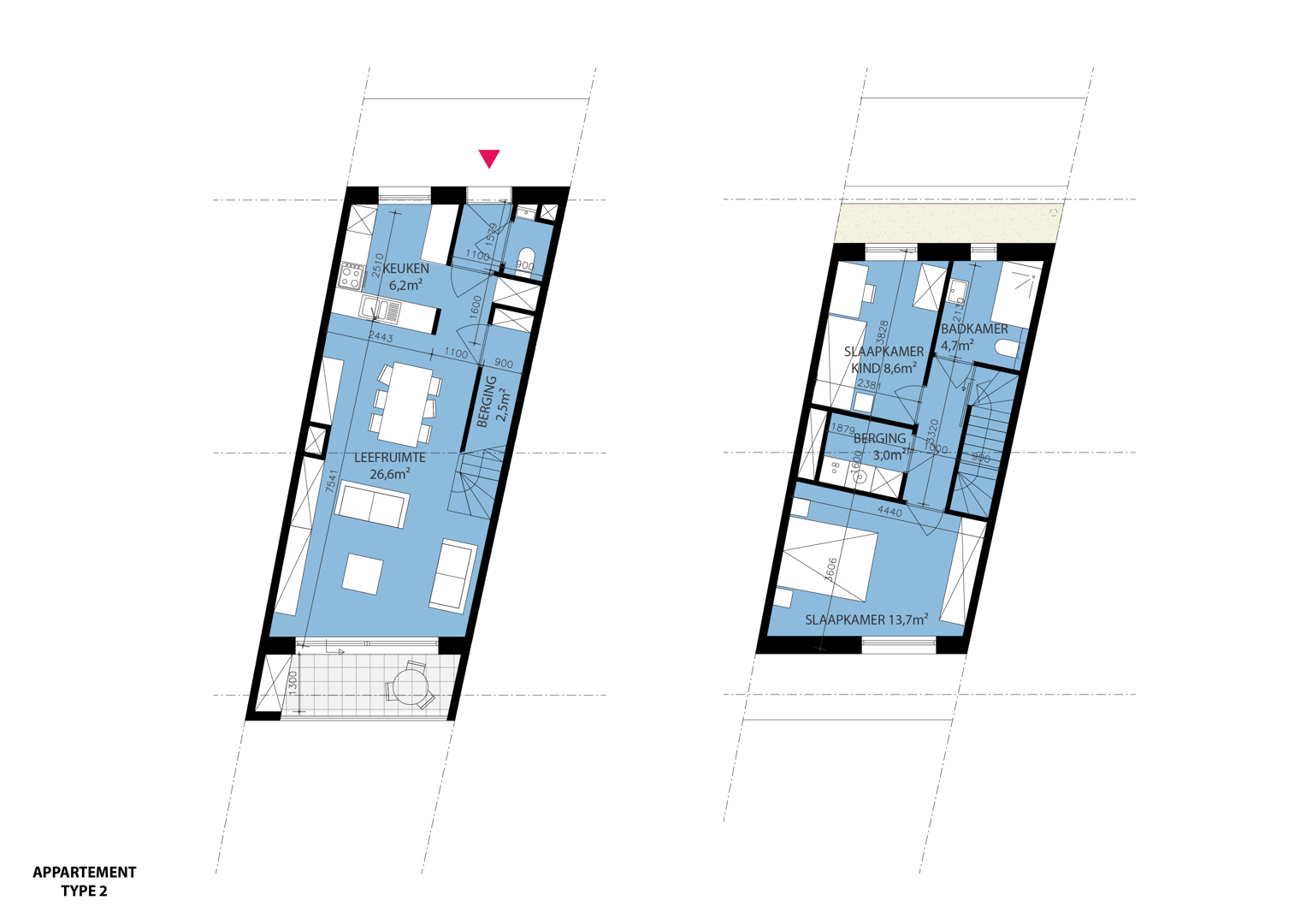
Slim ontworpen woningen met focus op ontmoeting en inclusie

Het ontwerp biedt niet alleen nieuwe woningen, maar introduceert ook een woontypologie die inzet op sociale interactie en privacy. In plaats van klassieke appartementen op het gelijkvloers ontwierp Woonwerk zeven maisonnettes met verhoogde inkompartijen. Elke woning beschikt over een eigen voordeur met trapje aan de straat, wat zorgt voor een geleidelijke overgang tussen publiek en privé. Deze kleine plintzones creëren mogelijkheden voor informeel gebruik van de straat, terwijl ze tegelijk de woonkwaliteit verhogen.

Aan de achterzijde verbindt een verhoogd terras de woningen met de gedeelde binnentuin, bereikbaar via een dubbelhoge inkomhal. Binnenin zijn de circulatieruimtes en passerelles bewust ruimer en informeler opgevat. Ze fungeren als plekken waar bewoners elkaar spontaan kunnen ontmoeten. Het volledige project, inclusief de bovenliggende appartementen, is bovendien ontworpen met aandacht voor toegankelijkheid voor mensen met beperkte mobiliteit.

Duurzaam bouwen met oog voor hergebruik en energieprestaties

Woonwerk koos resoluut voor een circulaire aanpak. De bestaande gebouwstructuur werd maximaal behouden: vloeren, wanden en gevelopeningen bleven overeind en vormden het uitgangspunt voor het nieuwe ontwerp. Enkel waar nodig werd bijgebouwd, met duurzame, biobased materialen. De nieuwe begane grond en optopping zijn opgetrokken in massief hout en CLT, en dragen bij aan een lagere CO₂-voetafdruk. De gevels werden thermisch verbeterd met isolatie en afgewerkt met gevelmetselwerk en FSC-gecertificeerd schrijnwerk.

Ook technisch voldoet het gebouw aan hoge duurzaamheidsnormen: een collectieve warmtepomp, vloerverwarming op lage temperatuur, ventilatie met warmteterugwinning en zonnepanelen zorgen samen voor een bijna energieneutrale prestatie. Het resultaat is een toekomstgericht gebouw, dat zowel in opbouw als in gebruik zo energiezuinig mogelijk is.

Architecturale helderheid en sterke inpassing in het straatbeeld

De beeldkwaliteit van het project sluit nauw aan bij de context. De gevels zijn opgebouwd uit genuanceerd metselwerk, voorzien van een stevige betonnen plint en horizontale lateien, gecombineerd met verfijnd houten schrijnwerk. Deze robuuste geveltaal past binnen de bestaande ritmiek van de straat en vertaalt de interne structuur van het gebouw naar buiten toe.

De inkompartijen van de maisonnettes, met hun uitgesproken houten portalen en kleine trapzones, zorgen voor een expressieve en herkenbare aanwezigheid in het straatbeeld. Binnen het bouwblok wordt ook informeel gewoond aan het steegje, wat de levendigheid van de plek versterkt. Zo ontstaat een woningtypologie die niet alleen beantwoordt aan ruimtelijke noden, maar ook inspeelt op sociaal gedrag in een stedelijke omgeving.

Natuurinclusieve ingrepen als versterking van de leefomgeving

Ook op het vlak van natuur en klimaat toont het project zijn meerwaarde. Zowel de daken als de verhoogde binnentuin werden aangelegd als groendaken, die niet alleen bijdragen aan waterbuffering maar ook de biodiversiteit verhogen. Regenwater wordt opgevangen in putten en hergebruikt, en het groen in de collectieve tuin werd zorgvuldig geselecteerd om bijen, vlinders en vogels aan te trekken.

Nestgelegenheid en voedselbronnen maken deel uit van het ontwerp, waardoor de tuin ook voor andere soorten dan de mens een leefbare plek wordt. Zo draagt het project niet alleen bij aan een aangename woonomgeving, maar ook aan de ecologische kwaliteit van het stadsweefsel. Het is een voorbeeld van hoe architectuur natuur mee in het ontwerp integreert, zonder dat dit ten koste gaat van woonkwaliteit of stedelijke densiteit.

Samen stad maken: zorgzaam, inclusief en toekomstgericht

Met dit project toont Woonwerk hoe stedelijke verdichting hand in hand kan gaan met sociale verbondenheid, duurzaamheid en architecturale kwaliteit. De maisonnettes aan de straat activeren het publieke domein, de collectieve ruimtes bevorderen ontmoeting, en de duurzame technieken en materialen verlagen de ecologische impact.

Bovendien maakt het project plaats voor diverse bewonersprofielen, waaronder mensen met een beperkte mobiliteit. In een wijk die volop in transitie is, positioneert dit ontwerp zich als een katalysator voor positieve verandering. Oudemansstraat is daarmee niet alleen een voorbeeldig woonproject, maar ook een pleidooi voor een stad die gebouwd wordt op maat van haar bewoners én haar toekomst.

Bron Woonwerk architecten

  • Deel dit artikel

Onze partners