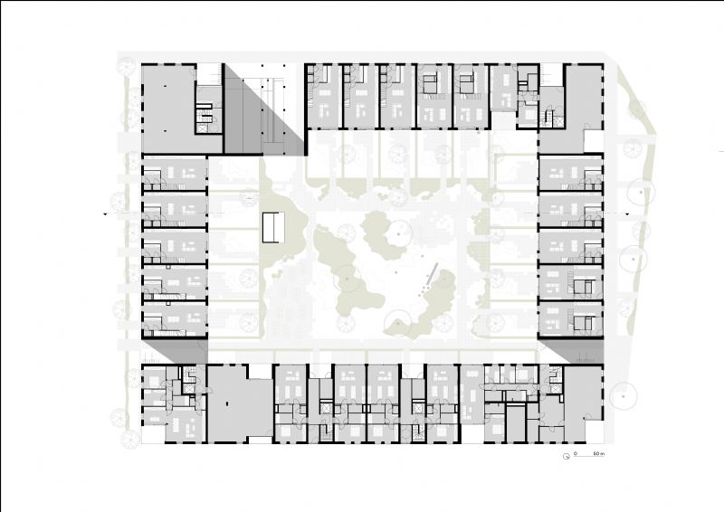
Binnenhof Pier Kornel
Dit project beslaat een volledig bouwblok binnen het masterplan Pier KORNEL (Lieven Achtergael Architecten). Een mix van 51 compacte tot middelgrote appartementen en 15 eengezinswoningen worden opgetrokken rond een gemeenschappelijk binnenhof en bovenop een ondergrondse parkeergarage. Op de gelijkvloerse hoeken worden buurtfuncties voorzien (crèche, buurtwinkel,..).
