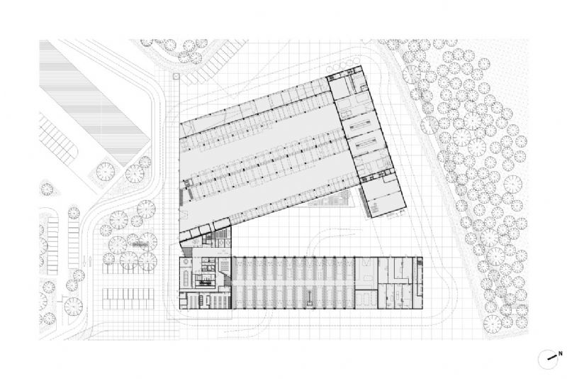
De Waterduivel
De nieuwe brandweerkazerne in Mechelen fungeert ook als stadsmagazijn voor de Mechelse uitvoeringsdiensten. De Waterduivel is een BEN-gebouw en werd ontwerpen met het oog op eventuele demontage. Heel wat elementen werden ook geprefabriceerd. HUB tekende voor het ontwerp, Trectebel Engie voerde de nodige studies uit. Van Roey, Democo en Willemen traden op als aannemer.
