Drie Koningen
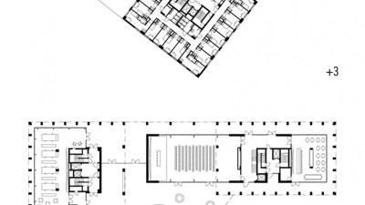
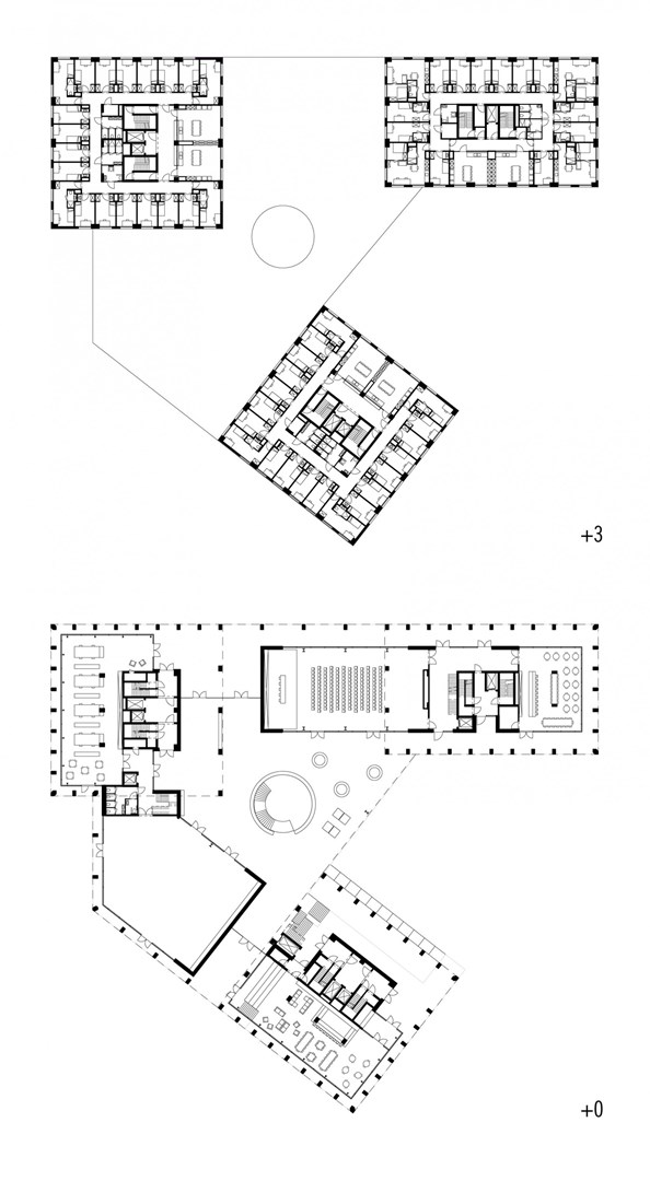
Een site langs de E40 en Kortrijksesteenweg in Gent, schuin tegenover de KBC-toren, vormt de locatie voor nieuwe studentenhuisvesting van projectontwikkelaar Immogra. Het project omvat 530 studentenkamers en een aanvullend programma met gemeenschappelijke studentenvoorzieningen, kantoorruimtes, een polyvalente zaal met cafetaria, en een ondergrondse parking en fietsenstalling. Absis Architecten, Archipl en Kollektif Landscape stonden in voor het ontwerp. Het project wil een antwoord bieden op de grote nood aan kwalitatieve en betaalbare studentenkamers in Gent en een voorbeeld zijn van een hedendaagse en duurzame studentenhuisvesting als hefboom voor een bredere stadsontwikkeling.
 
			 
                             
                             
                             
                             
                             
                             
                             
                            
