Elbeko
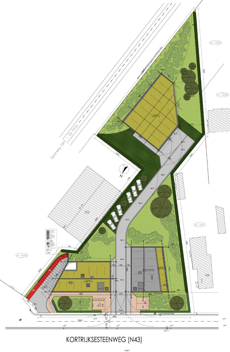
Dit nieuwbouwproject is gelegen op een perceel dat omsloten wordt door de Kortrijksesteenweg aan de noordkant en een spoorweg aan de oostkant. Het ontwerp bestaat uit drie volumes en is een resultaat van de richtlijnen die vastgesteld werden in de Studie van de hoofdsteenwegen van de stad Gent. Aan de straatzijde worden twee vrijstaande volumes gerealiseerd verwijzend naar de vrijstaande woningen op de naastliggende loten. Deze volumes zijn onderverdeeld in kantoren op de eerste twee bouwlagen en appartementen op de derde, bovenste bouwlaag. Tussen de twee gebouwen wordt een weg voorzien die het achterliggende magazijn bereikbaar maakt. De randen van de site, in aansluiting met de buren, worden maximaal voorzien van groen, karakteristiek voor deze kant van de Steenweg.
