Generaal Jacques

  • image
  • image
  • image

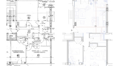
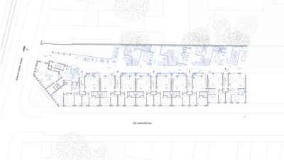
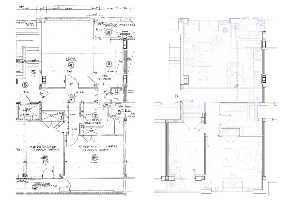
Het sociaal huisvestingsproject Generaal Jacques in Elsene krijgt een renovatie. De renovatie zou de levensduur van de complex tot 60 jaar verlengen. Het gebouw dateert uit het begin van de jaren 1960 en is ontworpen als flatgebouw met 61 appartementen voor ‘gehuwde rijkswachters’: 5 appartementen met 3 slaapkamers en 56 appartementen met 2 slaapkamers. De Brusselse Gewestelijke Huisvestingsmaatschappij (BGHM) wil het gebouw renoveren om de levensduur ervan met minstens 50 tot 60 jaar te verlengen. Met het oog daarop worden er delen duurzaam gerenoveerd en worden onderdelen die te verouderd zijn, vervangen.