Kantoorgebouw Baltisse
- Gent (Oost-Vlaanderen)
- Bekijk op Google Maps
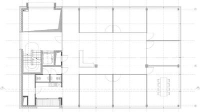
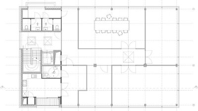
‘Take off’, het toekomstige kantorenpark aan de E40 in Gent, is in volle ontwikkeling. Bontinck Architecture and Engineering maakte niet alleen het masterplan op, ze zetten er ook kantoorgebouwen neer, waaronder Take Off Baltisse.


