Onthaal- en administratieruimtes Provinciedomein Huizingen
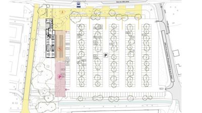
BC Architects ontwierp een nieuw paviljoen voor het Provinciedomein in Huizingen. Het gebouw is geplaatst tussen het kasteel en de parking en zorgt op die manier ook voor een gestructureerd verloop. Nu komen fiertsers, voetgangers en auto's op dezelfde plek terecht. Naast ticketbalies komer er ook bureaus en polyvalente ruimtes. Gebruikte materialen als hout en beton laten een lichte, open structuur toe. “De compactheid van het gebouw, de door circulatie gebufferde zuidgeoriënteerde binnenruimtes, het systeem van geïsoleerde prefab panelen en zonnedoeken, maken van dit ontwerp een logisch laag energie gebouw,” stipt BC Architects aan.
