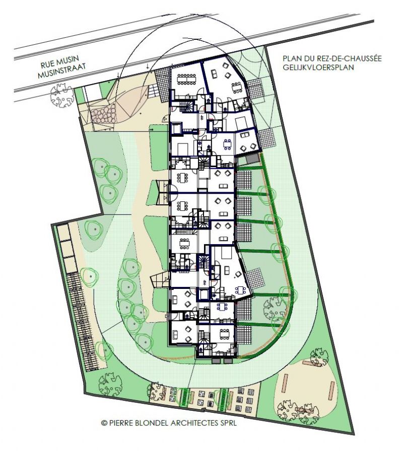
Reconstruction des logements sociaux Musin