Rozemaai Veld 15a

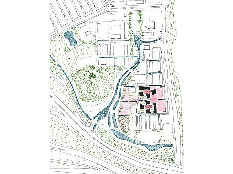
Het team BOGDAN & VAN BROECK en Shift A+U samen met Studie 10 is door een jury onder voorzitterschap van stadsbouwmeester Christiaan Rapp uitgeroepen tot winnaar van de ontwerpwedstrijd voor Veld 15a van Rozemaai. De opgave behelst het ontwerp van ca. 140 sociale woningen, 30 bescheiden woningen, een kinderdagverblijf, commerciële voorzieningen alsmede een scala aan openbare ruimtes. Het plangebied is gelegen in Rozemaai, een op modernistische leest geschoeide naoorlogse uitbreidingswijk van Antwerpen die een grootschalige transformatie ondergaat op basis van een door Buro Lubbers gemaakt masterplan. Kenmerkend onderdeel van dit masterplan is een reeds aangelegd natuurlijk beekdalpark dat gevormd wordt door het openmaken van de Donkse Beek. De jury prijst onder meer de manier waarop het winnende plan - Rozemaai thuis - een relatie aangaat met de gefragmenteerde stedelijke context en in het bijzonder met het landschap van dit nieuwe beekdal.