Sint-Albertuskerk
- Genk (Limburg)
- Bekijk op Google Maps
-
© Nuvillu
-
© Nuvillu
-
© Nuvillu
-
© Nuvillu
-
© Nuvillu
-
© Nuvillu
-
© Nuvillu
-
© Nuvillu
-
© OFFICEU architects for urbanity
-
© OFFICEU architects for urbanity
-
© OFFICEU architects for urbanity
-
© OFFICEU architects for urbanity
-
© OFFICEU architects for urbanity
-
© OFFICEU architects for urbanity
-
© OFFICEU architects for urbanity
-
© Eva Le Roi
-
© OFFICEU architects for urbanity
-
© OFFICEU architects for urbanity
-
© OFFICEU architects for urbanity
-
© OFFICEU architects for urbanity
-
© OFFICEU architects for urbanity
-
© OFFICEU architects for urbanity
-
© OFFICEU architects for urbanity
-
-
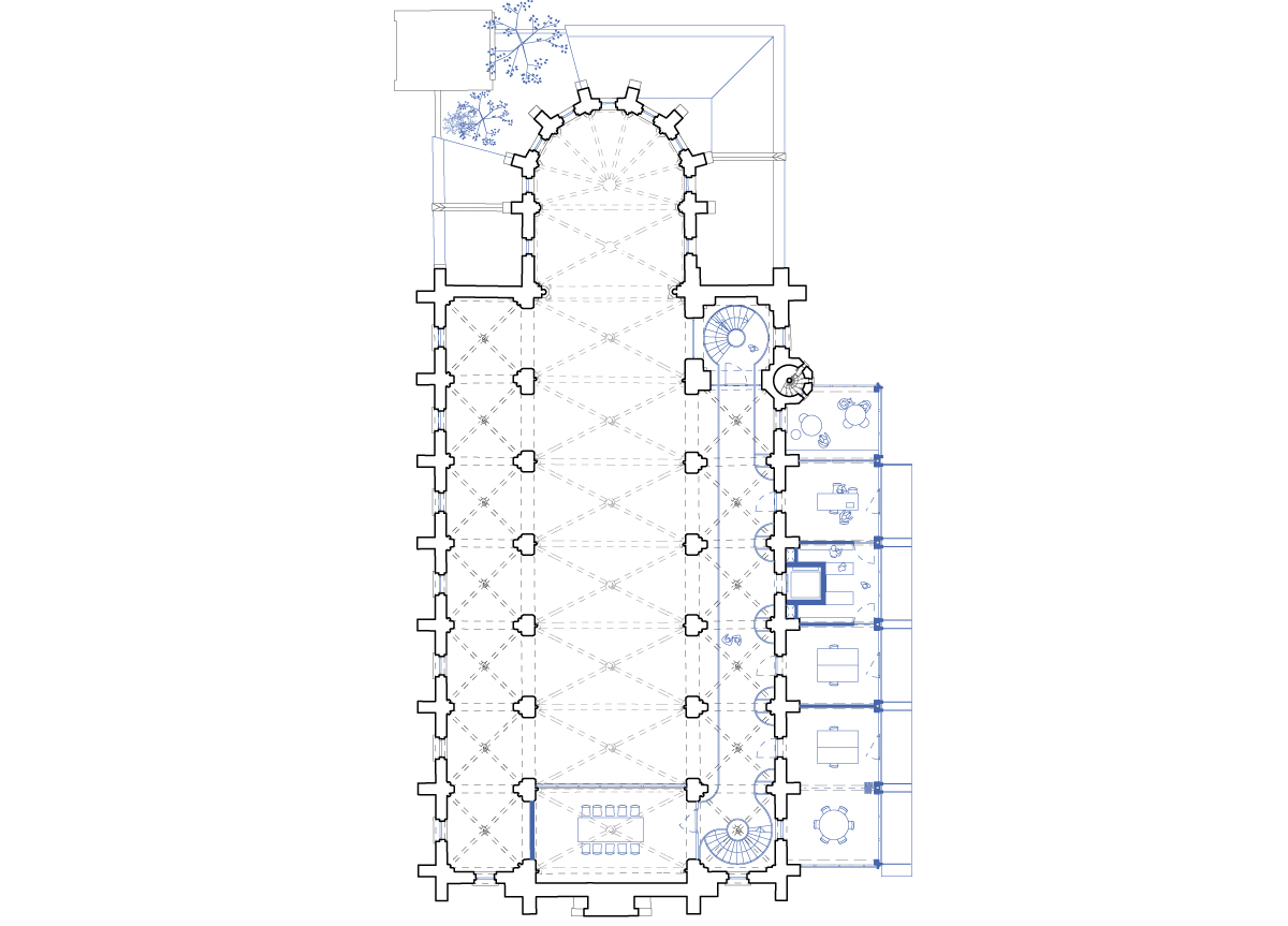
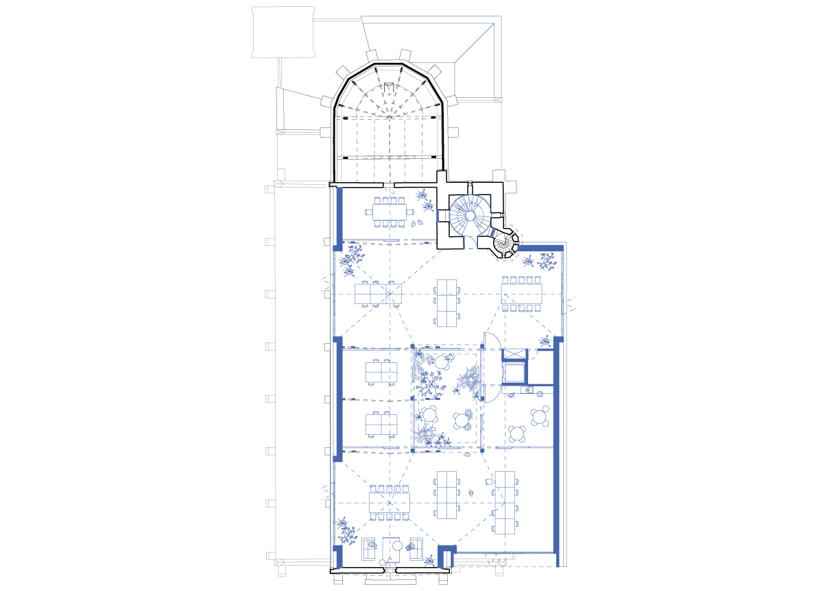
In 2021 kocht het digitale communicatiebureau Springbok de honderd jaar oude en sinds 2014 niet langer gebruikte Sint-Albertuskerk in Muizen. Samen met architectenbureau OFFICEU architects for urbanity werkte Springbok een ambitieus herbestemmingsproject uit met een bijzondere dubbelfunctie: een nieuw internationaal hoofdkantoor, maar daarnaast ook een ontmoetingsplaats voor de buurt. Ambitieuze plannen, die je sinds vorige week ook van naderbij kunt bekijken op de tentoonstelling ‘Time Space Existence’ in het Palazzo Mora in Venetië, een expo in het nevencircuit van de Architectuurbiënnale.