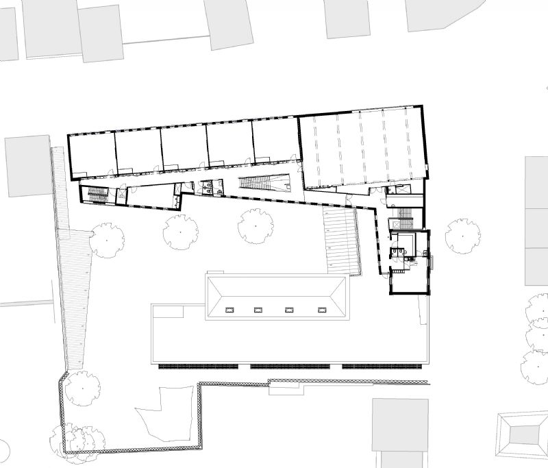
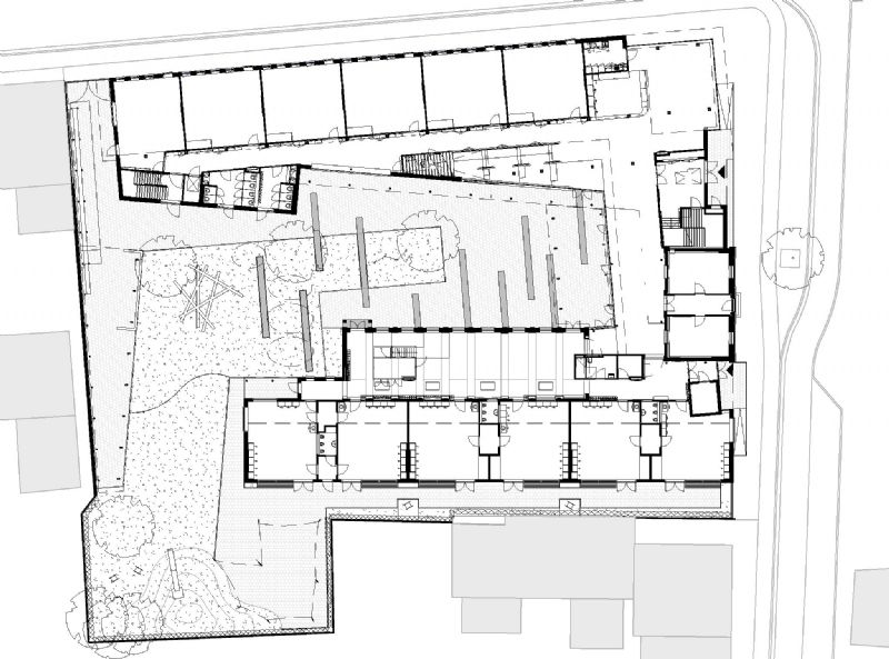
Vernieuwing stedelijke basisschool Hofstade

De stedelijke basisschool 't Hofje in Hofstade zal vanaf dit jaar een grondige transformatie ondergaan. Het ontwerp van de Jong Gortemaker Algra omvat een samenspel van nieuwbouw en oudbouw. Het studiebureau DWA zorgt voor installatie- en energieadvies bij het project.