Woonzorgcentrum Sint-Jozef Evere (1)
- Evere (Brussel)
- Bekijk op Google Maps
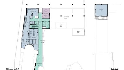
Architectenbureau BURO II & ARCH+I breidde het woonzorgcentrum Sint-Jozef in Evere uit met een afdeling voor 30 dementerenden, een lokaal dienstencentrum en 17 assistentiewoningen. Het gebouwenconcept gaat uit van drie programmaclusters, geïntegreerd in één architecturaal en functioneel geheel. Een eerste cluster is het lokaal dienstencentrum dat naar het park gericht is. De 3 leefgroepen voor telkens 10 dementerende bewoners zijn ondergebracht in gestapelde balkvormige bouwlagen die als woonentiteit functioneren. De derde cluster is die van zeventien flats geïntegreerd in een torenvolume.
