• 18 april 2026
  • NL
  • FR

Fruitstation Borgloon 344

  • image
  • image
  • image
  • image
  • image

ontwerpopdracht

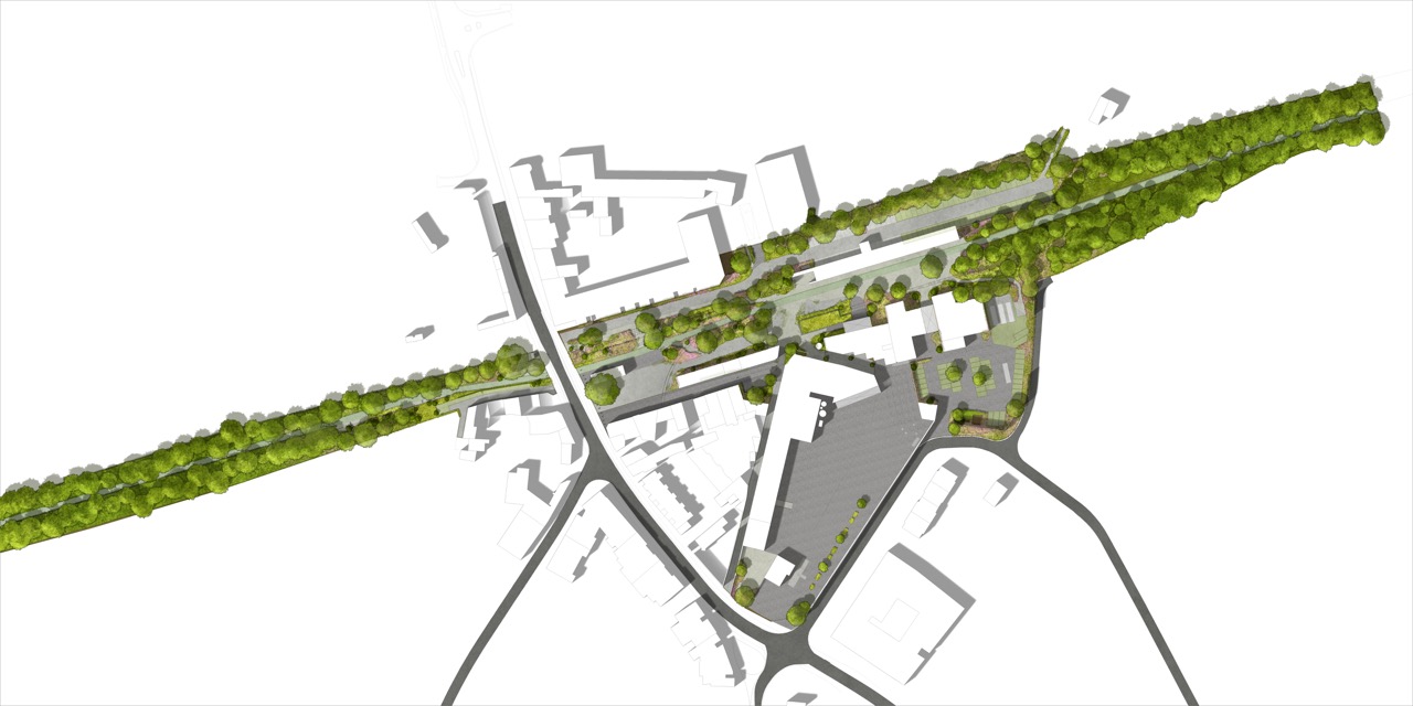
De ontwerpopdracht bestond uit de transformatie van de voormalige stationsomgeving van Borgloon tot een kwalitatieve publieke ruimte die fungeert als toegangspoort tot de Fruitroute. Het project moest een functionele site met erfgoedwaarde herbestemmen tot een levendige ontmoetingsplek voor fietsers en wandelaars. Daarbij lag de focus op het versterken van de ruimtelijke beleving, het zichtbaar maken van het historische fruitspoor en het integreren van een sterk groen-blauw kader met aandacht voor biodiversiteit, verblijfskwaliteit en zachte mobiliteit.

uitdagingen en antwoorden

De grootste uitdaging lag in het verzoenen van erfgoed, functionaliteit en hedendaagse klimaat- en biodiversiteitsdoelstellingen. Het voormalige stationsplein had een versnipperde en louter technische invulling. Door het historisch tracé en de materialen (zoals kasseien en spoorlijnen) te herinterpreteren, werd de identiteit hersteld. Tegelijk werd een gelaagd fruitgerelateerd beplantingsconcept uitgewerkt dat biodiversiteit en natuurinclusie versterkt. De integratie van waterdoorlatende verhardingen en losse kalksteen draagt bij aan infiltratie en klimaatadaptatie, tegelijk zorgen de materialen op de juiste plek voor een herinnering aan het station dat het ooit is geweest.

In hoeverre is het een duurzaam project in de brede betekenis van het woord?

Het Fruitstation zet sterk in op duurzaamheid door het hergebruik van bestaande materialen zoals kasseien en het respecteren van het historisch tracé. Het uitgebreide, gelaagde beplantingsconcept met inheemse soorten verhoogt de biodiversiteit en stimuleert een robuust ecosysteem. Water krijgt maximaal de kans om lokaal te infiltreren via doorlatende verhardingen en losse steensubstraten. Daarnaast stimuleert de site duurzame mobiliteit als schakel binnen de Fruitroute en creëert ze een toekomstbestendige publieke ruimte met hoge ecologische en sociale meerwaarde.

motivatie

Het Fruitstation onderscheidt zich door de sterke integratie van erfgoed, landschap, ecologie en recreatie in één helder en leesbaar ontwerp. De ruimte tussen en rond de architectuur vormt de drager van het verhaal, waarbij biodiversiteit, waterbeheer en zachte mobiliteit centraal staan. Het Fruitstation is meer dan een doorgangsplek: het is een belevingsruimte die verleden en toekomst verbindt. Door zijn gelaagdheid, duurzaamheid en maatschappelijke relevantie is dit project een voorbeeld van hoe publieke ruimte kan bijdragen aan klimaatadaptieve en natuurinclusieve omgevingen.

Op welke manier is het project een toonbeeld van een klimaatbestendige aanpak?

Het Fruitstation zet in op een geïntegreerde klimaatadaptieve aanpak waarin water, bodem en beplanting centraal staan. Door het gebruik van waterdoorlatende verhardingen en zones met losse kalksteen krijgt regenwater maximaal de kans om lokaal te infiltreren, wat piekbelasting op het rioleringsstelsel voorkomt. Het gelaagde beplantingsconcept met inheemse en droogtetolerante soorten verhoogt de weerbaarheid tegen extreme weersomstandigheden en draagt bij aan verkoeling en biodiversiteit. Zo ontstaat een robuuste, toekomstbestendige publieke ruimte die inspeelt op zowel droogte als intense neerslag.

Onze partners