• 18 april 2026
  • NL
  • FR

G1817 | Woning + renovatie van kunstenaarsatelier 194

  • image
  • image
  • image
  • image
  • image
  • image
  • image
  • image
  • image
  • image
  • image
  • image
  • image
  • image
  • image
  • image

ontwerpopdracht

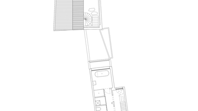
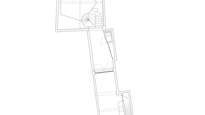
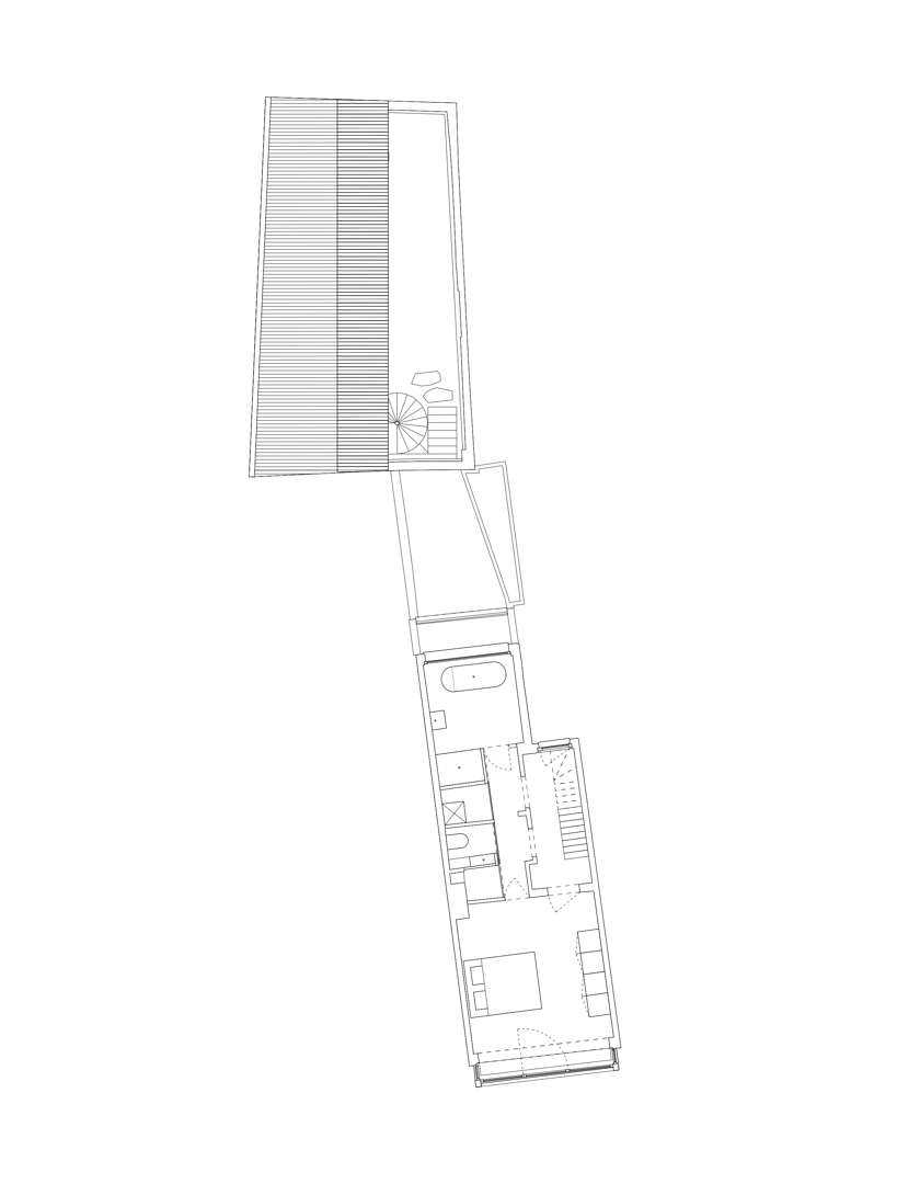
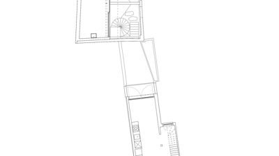
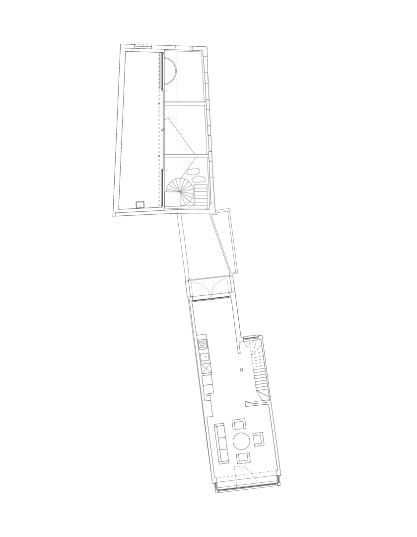
Een smalle rijwoning op een diep kavel in de stad wordt gestript en heringericht tot woning met atelier. Elke ingreep blijft leesbaar. Het betonskelet blijft behouden en wordt chirurgisch aangepast met metselwerk, houten balken en staalkolommen en multiplex binnenwanden. De nieuwe traphal wordt ontsloten door een betonnen sculptuur van kunstenaar Bram Vanderbeke. Achteraan transformeert de bakstenen schuur tot atelier. Het zadeldak wordt schuin afgeslepen, de gevels versterkt met een gele staalconstructie die verwijst naar tijdelijke schoringen. Tussen de kopgevels wordt een houten volume gespannen dat de schuine daklijn volgt en voorzien wordt van een luifel. Het atelier kijkt uit over het binnengebied. Daaronder ontstaat een overdekte buitenruimte die aansluit op een ommuurde tuin.

uitdagingen en antwoorden

De belangrijkste uitdaging lag in het creëren van een kwalitatieve tuinruimte in combinatie met een atelierfunctie. Door beide programma’s zorgvuldig te verweven ontstaat een evenwicht tussen wonen en werken, waarbij het groen een actief onderdeel vormt van gebruik en beleving. Er werd ook ingezet op een overdekt terras, zodat binnen een dense stedelijke context een beschutte en bruikbare buitenruimte ontstaat die het wooncomfort verhoogt en de relatie met de tuin versterkt. De stedelijke inpassing vormde een cruciale ontwerpopgave: het project sluit aan bij de bestaande bebouwing en vormt tegelijk een hedendaagse toevoeging zonder extra volume.Door strategisch open ruimte vrij te maken ontstaat meer licht, doorzicht en een aangenamere, gezonde en kwalitatieve leefomgeving voor de bewoners

In hoeverre is het een duurzaam project in de brede betekenis van het woord?

Het project is duurzaam in de brede betekenis doordat het alle bestaande lagen zichtbaar en leesbaar houdt, waardoor de historische gelaagdheid behouden blijft en versterkt wordt. Het nieuwe atelier is opgevat als een onafhankelijke houtskeletbouw, ingebouwd binnen de bestaande staalstructuur. Deze ingreep is volledig circulair en ontmantelbaar ontworpen, zodat materialen in de toekomst hergebruikt kunnen worden. Door te werken met het bestaande als een ‘intelligente ruïne’ wordt maximaal ingezet op hergebruik en minimale ingrepen, wat zowel ecologisch als cultureel bijdraagt aan een duurzame architectuur.

motivatie

Dit project verdient een Architectura-award omdat het op een beperkte oppervlakte een uitzonderlijk rijke en complexe ruimtelijkheid weet te realiseren. Door slim om te gaan met schaal, doorsnedes en zichtlijnen ontstaat een gelaagde architectuur die veel groter aanvoelt dan haar footprint doet vermoeden. Daarnaast onderscheidt het project zich door de manier waarop het met de bestaande lagen omgaat. In plaats van deze te verbergen, worden ze bewust ingezet als vertrekpunt voor een nieuwe architectuurtaal. Het resultaat is een uitgesproken en verfijnde ingreep die verleden en heden op een intelligente en poëtische manier met elkaar verweeft.

Onze partners