• 18 april 2026
  • NL
  • FR

Herbestemming Sint-Martinuskerk 130

  • image
  • image
  • image
  • image
  • image
  • image
  • image
  • image
  • image
  • image
  • image
  • image
  • image
  • image

ontwerpopdracht

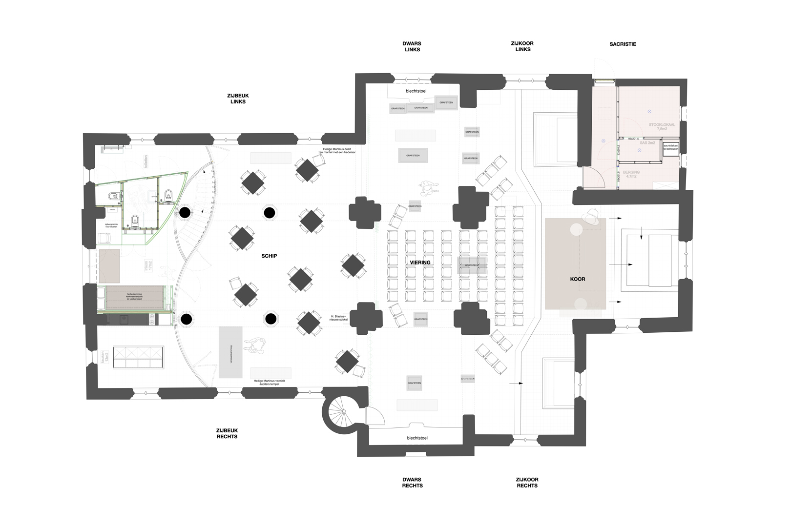
De beschermde Sint-Martinuskerk met oorsprong tot in de 12de eeuw, kreeg een nieuwe toekomst als polyvalente ontmoetingsplek en stille ruimte. De gemeente Merelbeke wilde een invulling die erfgoed respecteert én hedendaagse noden beantwoordt. De nieuwe bestemming vereiste ondersteunende faciliteiten zoals een sanitaire ruimte, een keuken, opbergruimtes en een vestiaire. Achter de witgeschilderde muren van de kerk, bleken rijkelijke neogotische muurschilderingen schuil te gaan. Gezien het huidige uitzicht van de kerk wordt bepaald door 19de eeuwse herstellings- en uitbreidingswerken, werd gevraagd om deze laag ook in het interieur terug bloot te leggen.

uitdagingen en antwoorden

De juiste balans vinden tussen de ruimtelijkheid van het kerkinterieur, de erfgoedwaarde en de noodzakelijke ingrepen om de kerk te herbestemmen, bleek een grote uitdaging. Om het erfgoed maximaal leesbaar te houden werden de moderne technieken maximaal weggewerkt via de zolder en bestaande sleuven (belichting, technische bekabeling, brandbeveiliging). Vloerconvectoren (een grote uitdaging gezien de rijke archeologische ondergrond) voorzien de kerk van warmte. Het nieuwe programma met sanitair, vestiaire, keuken en een trap, gaan schuil achter een golvende, transparante, blauwe staalstructuur. De kleur werd afgestemd op de polychrome muurschilderingen. De structuur inpassen was een huzarenstuk: het volume zweeft tussen het erfgoed, vormt een zacht contrast en is bovenal reversibel.

In hoeverre is het een duurzaam project in de brede betekenis van het woord?

Duurzaamheid uit zich hier primair in de sociale herbestemming. Translucente, brandwerende en akoestische gordijnen en een verplaatsbaar keukenmeubel zorgen voor flexibel ruimtegebruik: van yogales of workshop tot intiem concert. De zachte contrasten en huiselijke sfeer brengen de kerk opnieuw dicht bij de inwoners van Schelderode en heractiveren de ruimte. Inventief hergebruik van religieus meubilair maximaliseert de aanwezige middelen en behoudt het unieke karakter; zo dient de sacristiekast als datakast, de kerkmeesterbank als vestiairebaldakijn en de biechtstoelen als berging. Deze onzichtbare schil van modern comfort (lichtregie, verwarming, hemelwaterrecuperatie, aansluiting riolering, …) bestendigt de kerk als een robuust en toekomstbestendig platform voor de lokale gemeenschap.

motivatie

Dit project bewijst dat frisheid en nieuw leven niet voortkomen uit visuele dominantie, maar uit een dialoog met het verleden. Door de neogotische gelaagdheid te omarmen in plaats van te overstemmen, wint het interieur aan betekenis. De blauwe staalstructuur en het warme eikenhout vormen een gebalanceerde tegenpool voor de rijke muurschilderingen. De creatieve maatoplossingen, van de puzzel voor technieken tot het hergebruik van de kerkmeesterbank, tonen aan dat interieurarchitectuur in een historische context stoelt op inventiviteit. Dit project dient als een krachtig voorbeeld voor de herbestemming van parochiekerken: met doortaste, minimale ingrepen heractiveert het de sacrale ruimte als een bezield en toekomstbestendig, publiek ankerpunt in de lokale gemeenschap.

Onze partners