• 18 april 2026
  • NL
  • FR

HUID 360

  • image
  • image
  • image
  • image
  • image
  • image
  • image
  • image
  • image
  • image
  • image
  • image
  • image
  • image
  • image
  • image

ontwerpopdracht

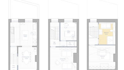
Een jong koppel transformeert een smalle, goed gelegen stadswoning uit 1900 met respect voor haar authenticiteit. Achter de verouderde afwerking schuilt een solide structuur met groot potentieel. De ontwerpopdracht focust op het binnenbrengen van natuurlijk licht en het creëren van openheid, met minimale ingrepen zoals strategische interne ramen. Vanuit circulaire principes worden bestaande materialen maximaal behouden, in situ hergebruikt of uit de circulaire economie gerecupereerd. Ecologische, demonteerbare en ademende materialen, zoals leem, verhogen het comfort en maken toekomstige aanpassingen mogelijk. Het resultaat is een biofiele, duurzame renovatie die het huis als dynamisch en herbruikbaar geheel benadert.

uitdagingen en antwoorden

Dit project transformeert een smal, verouderd huis tot een hedendaagse woning met respect voor zijn essentie. Met behoud van 71% van het gebouw, 11% in situ hergebruik en maximaal ex situ hergebruik van materialen staat circulariteit centraal. Structurele ingrepen met lichte houtconstructies versterken het geheel, terwijl gerichte openingen meer daglicht binnenbrengen zonder energieverlies. Ademende materialen bewaken de vochtbalans in de massieve muren. Gerecupereerde elementen bepalen een sobere, samenhangende esthetiek waarin imperfecties kwaliteit worden. Flexibele technieken en versterkte structuren maken het huis aanpasbaar en toekomstgericht.

In hoeverre is het een duurzaam project in de brede betekenis van het woord?

Het project is duurzaam in brede zin doordat het ecologische, economische en gebruiksgerichte aspecten verenigt. Ecologisch door maximaal behoud, hergebruik van materialen en toepassing van ademende, milieuvriendelijke bouwstoffen. Economisch door waardebehoud van de bestaande structuur en beperking van sloop- en materiaalkosten. Functioneel door aandacht voor comfort, licht en een gezond binnenklimaat in een biofiel ontwerp (rekening houdend met de impact op het welzijn van de bewoners). De integratie van flexibele technieken en demonteerbare ingrepen maakt toekomstige aanpassingen mogelijk. Zo wordt het huis geen eindproduct, maar een evoluerend systeem met een lange levensduur en minimale impact.

motivatie

Een radicale en meetbare aanpak op circulariteit en hergebruik kan via een prijs zoals de architectura-award meer visibiliteit verkrijgen waardoor deze aanpak iets gangbaarder wordt in het architectuurlandschap. Op die manier wil Karibu meer architecten hiertoe aanzetten. Karibu koppelt ontwerpkwaliteit aan materiaalcalculatie en toont aan dat duurzaam bouwen verder gaat dan intentie: het is onderbouwd en aantoonbaar. Door maximaal behoud en hergebruik werd de afvalproductie met 50% gereduceerd t.o.v. de gangbare 8 ton per 100 m². Tegelijk staat het welzijn van de gebruiker centraal: via principes uit de neuroarchitectuur zorgen licht, materialiteit en ruimtebeleving voor een gezond en comfortabel leefklimaat. Zo verenigt het project esthetiek, impact en toekomstgericht denken.

Onze partners