• 18 april 2026
  • NL
  • FR

Lange Beeldekens 266

  • image
  • image
  • image
  • image
  • image
  • image
  • image
  • image
  • image
  • image
  • image
  • image
  • image
  • image
  • image
  • image

ontwerpopdracht

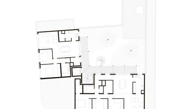
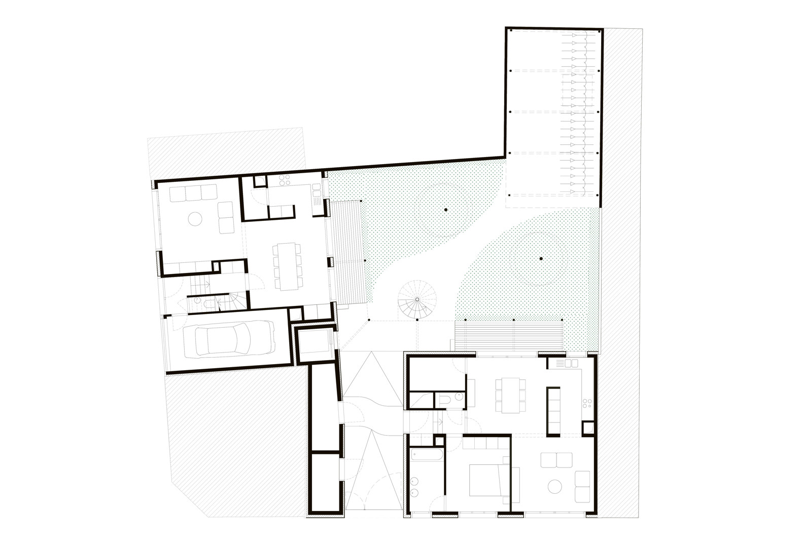
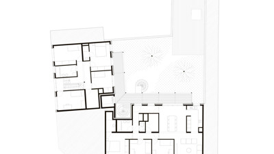
Collectief huisvestingsproject Lange Beeldekens groepeert zeven appartementen rondom een gemeenschappelijke binnentuin met fietsenberging. Hiervoor worden twee percelen aangewend: één in de Lange Beeldekensstraat, een andere in de Greinstraat. Ze raken elkaar in het binnengebied van een bouwblok en flankeren daarbij een hoekgebouw. De kern wordt uitgewerkt als groene ruimte tussenin twee autonome doch verbonden gebouwen. Op het scharnierpunt van beide woonvolumes komt de gemeenschappelijke circulatie. Gaanderijen verzorgen de overgangen van gedeeld naar privaat en fungeren ook als verlengdes van de doorzonappartementen. De volumes zelf worden volledig in CLT uitgevoerd, aangevuld met een uitwendige staalstructuur. In detaillering overstijgt de materialiteit het puur utilitaire.

uitdagingen en antwoorden

De opdracht kadert binnen het grond- en pandenbeleid van stad Antwerpen, dat ambieert verwaarloosde panden in achtergestelde buurten te vervangen door kwalitatieve woningen. Omdat de initiële vraag – twee panden zouden tot vijf rijwoningen worden verbouwd – zou verderzetten wat ons inziens niet altijd goed werkt, maakten we kritische keuzes. We namen allesbehalve de gemakkelijkste weg. Vooreerst overtuigden we de bouwheer om meergezinswoning i.p.v. rijwoningen te realiseren, waardoor nieuwe doelgroepen en meer gezinnen konden worden gehuisvest. Deze wonen dan niet ‘naast’, maar ‘samen met’ elkaar. De parkeernorm voor deze meergezinswoning voorzag 9 parkeerplaatsen: met verschillende scenario’s dienden we de stad van de onzin van dergelijke regel op deze geringe oppervlakte te overtuigen.

In hoeverre is het een duurzaam project in de brede betekenis van het woord?

De initieel voorziene massiefbouw werd gaandeweg aangepast naar een meer duurzame CLT-constructie, die ook extra karakter aan de woningen verleent. Na lang overleg met de betrokken diensten ontstond een compact maar genereus woonconcept, dat duurzaamheid en karakter met elkaar verzoent, en waar zowel naar ruimte, licht, materialisatie, akoestiek en detaillering nieuwe standaarden worden uitgezet. Als project creëert Lange Beeldekens zo niet alleen kwaliteit voor de bewoners, maar ook meerwaarde binnen de buurt. Gezien de context genereert deze meerwaarde een sterke sociale duurzaamheid.

motivatie

Door haar footprint, prominente positie en aansluiting op twee straten beschikte de site over bijzondere troeven. Deze troeven bleven in de initiële opdrachtvraag echter onderbenut. Na kritische herevaluatie van de opdracht slaagden we erin om door middel van architectuur meerwaarde te creëren in een uitdagende buurt met specifieke problematieken. Anders dan de monotoon getinte rijwoningen met ondoordringbaar karakter, maakte Lange Beeldekens plaats voor een nieuwe typologie met mogelijkheid tot meer diversiteit. Het is een innovatief woonproject dat een voorbeeld stelt voor een meer collectief en divers herontwikkelen van soortgelijke sites, die in onze stedelijke landschappen alomtegenwoordig zijn.

Onze partners