Cohousingproject in het groen illustreert circulair materiaalgebruik (Bruno Spaas Architectuur)

  • image
  • image
  • image
  • image
  • image
  • image
  • image
  • image
  • image
  • image
  • image
  • image

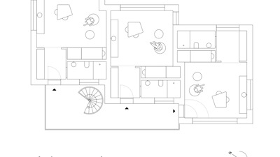
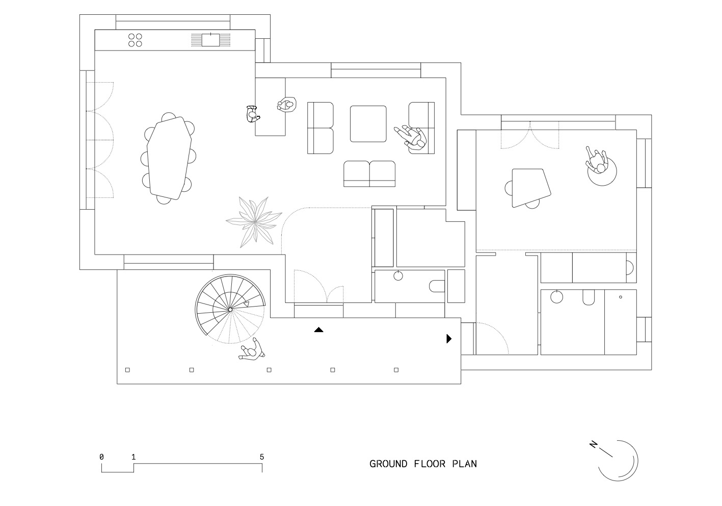
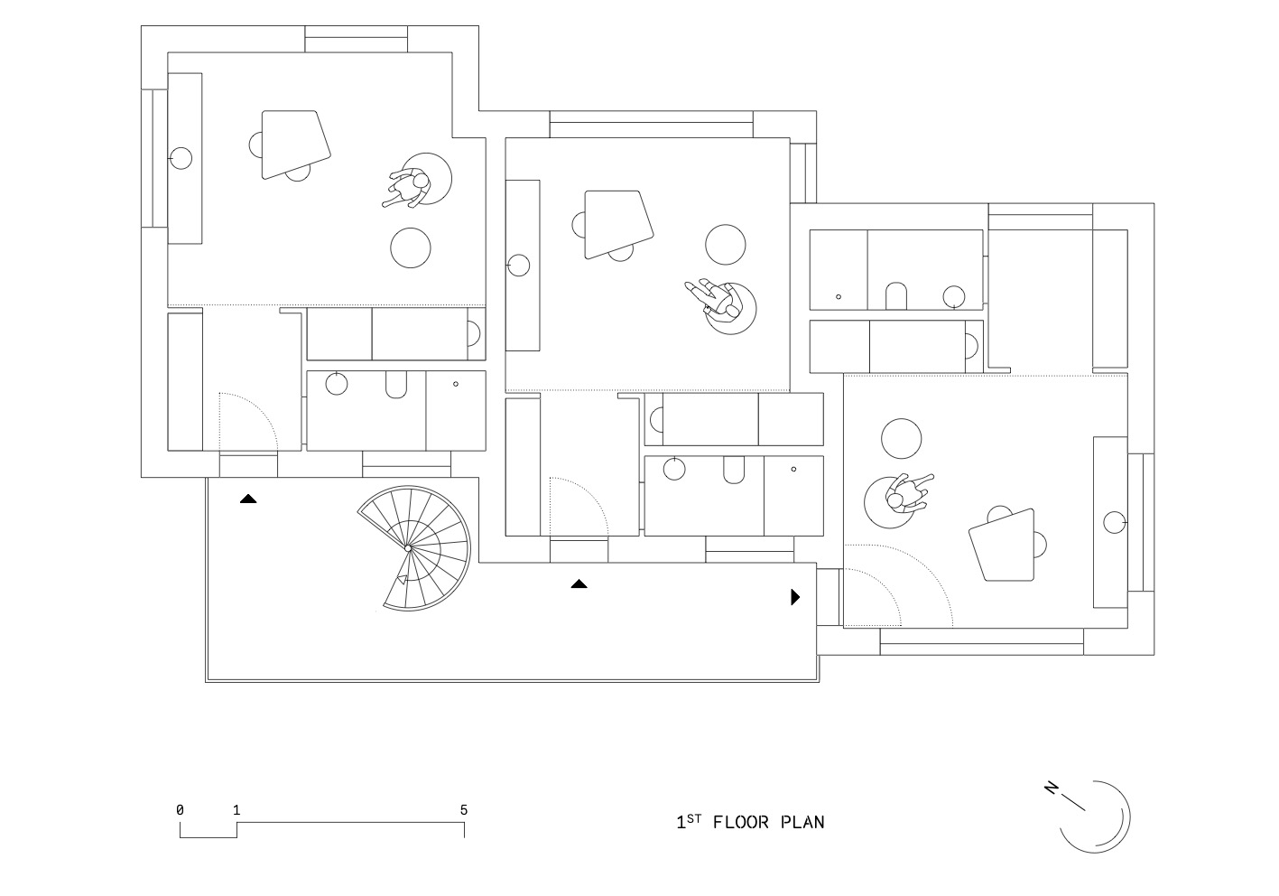
Het cohousingproject dat Anapneusis, een vzw die betaalbare huisvesting biedt aan kwetsbare personen, liet optrekken aan de E10-plas in Schoten, is het resultaat van doorgedreven circulair bouwen. Vooral over het sluiten van materiaalkringlopen valt van het project veel te leren. Het gebouw dat werd ontworpen door Bruno Spaas Architectuur en vandaag acht gewezen daklozen huisvest, was onlangs een van de vier laureaten van de Bis-architectuurwedstrijd die Bis jaarlijks met de Orde van de Architecten – Vlaamse Raad organiseert en die dit jaar circulair bouwen als thema had.  

De duurzame nieuwbouw met buitentrap aan het einde van een groene laan die uitmondt aan de E10-plas, herbergt vier studio’s en een gemeenschappelijke ruimte. Het gebouw, gerealiseerd door PUUR Bouwen, vervangt een bestaande woning die na grondig onderzoek niet efficiënt te renoveren bleek. Bruno Spaas Architectuur koos de materialen en energieconcepten zodanig dat ze een minimale impact hebben op de menselijke gezondheid en het milieu.


Schelpen als fundering

De fundering bestaat uit een betonnen ringbalk die werd gevuld met een schelpendek van zo’n 40 cm diep. De schelpen, afkomstig uit de Noordzee, sluiten de vochtige bodem af en houden de lucht erboven droog. Bovendien zijn ze 100% herbruikbaar – ze vergaan nauwelijks.


Houtskelet met kalkhennep en houtwol

In het gebouw voeren net als in de fundering bouwmaterialen van natuurlijke oorsprong de boventoon. Het heeft een houtskelet dat werd ingevuld met houtwolisolatie en kalkhennep. Aan de binnenzijde werd de woning afgewerkt met leempleister. Leem en kalkhennep, een natuurlijk mengsel van hennephout, hydraatkalk, minderalen en water zonder toevoeging van chemische stoffen, scoren zowel op het vlak van geluidsisolatie als -absorptie zeer goed. De materialen, die ook herbruikbaar zijn, zorgen ook voor een dampopen constructie, dankzij de vochtregulerende en luchtzuiverende eigenschappen die ze van nature bezitten. Daardoor volstaat een minimum aan technieken en ventilatiesystemen om een aangenaam en gezond binnenklimaat te creëren.


Lichte invulwanden van gipsvezelplaten

Bruno Spaas Architectuur koos voor de lichte invulwanden niet voor gipskartonplaten maar voor gipsvezelplaten. Die bestaan uit een vermenging van cellulosevezels – gerecycleerd papier – en gips, zonder toevoeging van andere bindmiddelen.

Om de woning te verwarmen en te voorzien van stroom wordt gebruikgemaakt van een geothermische warmtepomp en zonnepanelen. Bij de constructie van het gebouw werden ook hemelwaterputten met een regenwaterrecuperatiesysteem aangelegd voor de spoeling van de toiletten.

De bakstenen gevels werden wel opgevoegd met in de massa gekleurde metselmortel. Mocht het gebouw ooit moeten verdwijnen, zijn de gevelstenen – afkomstig uit de buurt – volgens de architect wel recupereerbaar, al zal daar dus wel enig kuiswerk bij komen kijken. Het dak werd afgewerkt met rode dakpannen en de vloeren in het gebouw werden betegeld met keramische tegels.

dus niet helemaal schadeloos te recupereren om te gebruiken in een ander project. De rest van het gebouw valt in principe volledig te demonteren met het oog op hergebruik.

  • Deel dit artikel

Onze partners