A2o architecten en Broekbakema ontwerpen circulaire Bouwcampus 2.0 in Diepenbeek

  • image
  • image
  • image
  • image
  • image
  • image
  • image
  • image
  • image
  • image
  • image
  • image
  • image
  • image

POM Limburg en de provincie Limburg hebben na een aanbesteding a2o architecten en het Nederlandse Broekbakema aangesteld voor het ontwerp van het Bouwcampus 2.0-gebouw in Diepenbeek, dat als voedingsbodem moet fungeren voor innovaties in de bouwsector. Bouwbedrijven Vanhout en Dethier, die zich voor de aanbesteding verenigden in een multidisciplinair team met de ontwerpbureaus, mogen de werken uitvoeren. Die starten in 2025 en zullen in 2027 klaar zijn. De bouwcampus wordt een circulair gebouw dat de standaard voor duurzaam bouwen moet herdefiniëren.

“Wie een campus bouwt rond innovatieve ideeën in de bouw, moet de daad ook zelf bij het woord voegen”, sprak gedeputeerde van de provincie Limburg voor Economie en voorzitter van POM Limburg Tom Vandeput bij het uitschrijven van de aanbesteding waarmee op zoek zou worden gegaan naar een multidisciplinair team bestaande uit een of meerdere ontwerpers en aannemers. “Het gebouw wordt met een zo minimaal mogelijke voetafdruk opgetrokken, volgens de hedendaagse principes van circulair en modulair bouwen. Het wordt het toonbeeld van innovatie, doorgedreven duurzaamheid en flexibiliteit.”

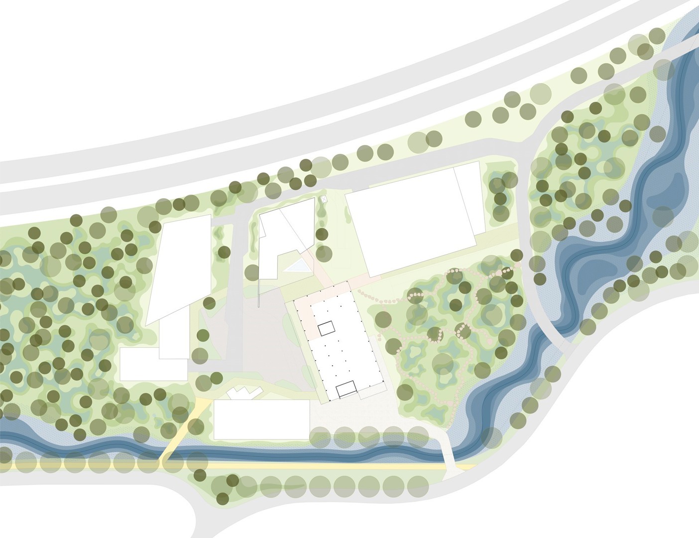
Die aanbesteding werd nu dus gewonnen door een team bestaande uit de ontwerpbureaus a2o architecten en het Nederlandse Broekbakema en de aannemers Vanhout en Dethier. De architecten ontwierpen, gebruikmakend van BIM, een compact gebouw met 5.500 m² aan vloeroppervlakte dat flexibel indeelbaar, aanpasbaar en demonteerbaar is en bovendien voorziet in innovatieve energieoplossingen.


Houten structuur

Het gebouw, dat plaats biedt aan werkplekken en zal fungeren als kennis- en ontmoetingscentrum voor de bouwsector en dus ook als voorbeeldproject op het vlak van circulair bouwen, heeft een houten structuur van balken en kolommen – met daarop houten vloeren – die gemakkelijk uit elkaar te halen is met het oog op aanpassing aan toekomstige noden in eerste instantie en hergebruik in tweede instantie. Verschillende vormen van uitbreiding kunnen razendsnel toegevoegd worden door de logica van het basisvolume. De flexibiliteit van het ontwerp moet er volgens POM Limburg voor zorgen dat het gebouw zeker honderd jaar meegaat.

Naast kantoorruimtes voor onder meer Embuild, Inter en DUBO herbergt Bouwcampus 2.0 ook een centrale ontmoetingsruimte, flexibele werkplekken en een auditorium herbergen. De ontmoetingszone is zichtbaar vanaf buiten, wat het gebouw een open en levendige uitstraling moet geven. Bouwcampus 2.0 voorziet daarnaast ook in laboratorium van 1.100 m² groot ter uitbreiding van het betonapplicatiecentrum van UHasselt.

Naast hout voor de structuur zullen er ook zoveel mogelijk andere biogebaseerde bouwmaterialen worden gebruikt bij de bouw van Bouwcampus 2.0, zoals onder meer kalkhennep en leempleister.


Energiepositief

Innovatieve technieken zoals onder meer zonnepanelen geïntegreerd in de gevel en luifels en een innovatief luchtbehandelingssysteem dat gebruikmaakt van natuurlijke hulpbronnen moeten ervoor zorgen dat Bouwcampus 2.0 energiepositief is. Het gebouw zal met andere woorden meer energie opwekken dan het nodig heeft. Daarnaast zal het gebouw ook regenwater recupereren.

De technische installaties zijn niet alleen functioneel, maar dienen ook een didactisch doel en worden daarom zichtbaar gehouden. Zo zullen ze niet alleen hun werking tonen, maar ook onderstrepen dat technologie en architectuur hand in hand kunnen gaan.


Aandacht voor omliggende natuur

A2o architecten en Broekbakema hebben het gebouw, met een ingang aan de noordzijde die aansluit op de belangrijkste wandelroutes op de site, ook zo ontworpen dat het de bouwgrond en omringende natuur zo min mogelijk zal verstoren. Zo komt het gebouw op reeds ‘verstoorde’ oppervlakte, krijgt het geen kelder en krijgt alle uitgegraven grond een nieuwe plaats op de site.

Het project heeft een totaalbudget van 27,2 miljoen euro, gefinancierd door EFRO (9,4 miljoen euro), de Vlaamse overheid (3,5 miljoen euro) en private investeerders.

 

  • Deel dit artikel

Onze partners