Ecologische en recuperatiematerialen kenmerken loft in voormalig pakhuis (Veldhuis en Karibu architecture)

  • image
  • image
  • image
  • image
  • image
  • image
  • image
  • image
  • image
  • image
  • image
  • image
  • image
  • image

In Anderlecht toverden Veldhuis en Karibu architecture onlangs een casco ruimte in een oud opslaggebouw om tot een ruime loft. Hun ontwerp respecteerde de wens van de opdrachtgever, een jong koppel uit Gent, om het aanwezige karakter te behouden, te werken met zo veel als mogelijk ecologische en recuperatiematerialen en maximaal in te zetten op aanpasbaarheid.

De ontwikkelaar die het pakhuis enkele jaren geleden kocht om het op te kalefateren en de verschillende ruimtes vervolgens casco te verkopen, had bij de renovatie de bestaande gevel verborgen achter een frisse laag wit pleister, zonder veel aandacht te besteden aan het historische karakter van het pand. Die aanpak staat in schril contrast met de duurzame aanpak die het jonge koppel, Godfried en Julie, hanteerde voor het omvormen van de aangekochte casco ruimte tot loft.

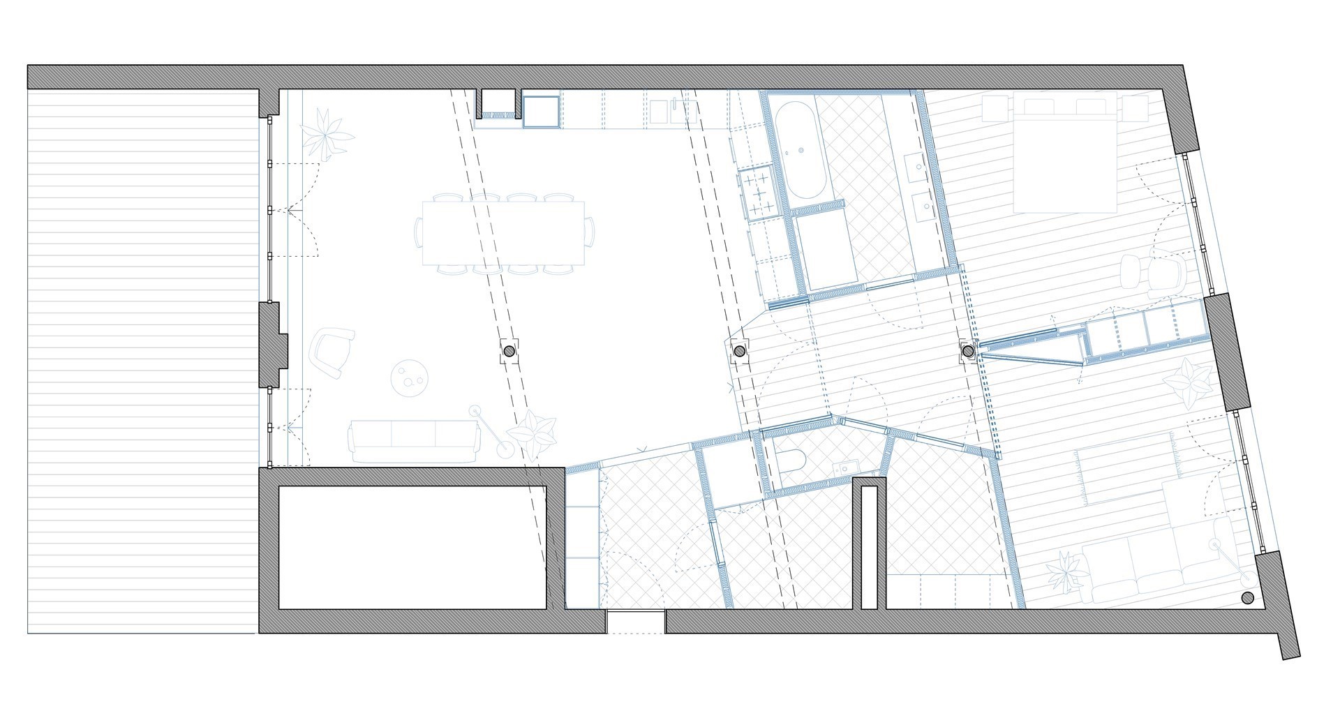
Bij het realiseren van hun loft, bestaande uit een leefruimte met keuken, twee slaapkamers, een badkamer, een toilet, een bergruimte en een nachthal die al die ruimtes met elkaar verindt, wilden Godfried en Julie ten eerste het karakter van de bestaande ruimte maximaal conserveren. Die identiteit wordt gekenmerkt door de oude houten roostering, de brute betonvloer, de ruwe wanden van zichtbaar metselwerk, verfsporen die getuigen van jarenlang intens gebruik, de drie majestueuze gietijzeren kolommen en de stalen liggers die rusten op die laatste, elementen waar het koppel meteen door gecharmeerd geraakte toen het de ruimte voor het eerst bezocht – in de zoektocht naar een woonst dichter bij het werk in Brussel.

De architectenbureaus die het koppel onder de arm nam, Veldhuis en Karbibu architecture, moesten daarnaast  ook zo veel als mogelijk ecologische en recuperatiematerialen toepassen. En de ontwerpers moesten de loft tot slot ook zo concipiëren dat de indeling ervan met het oog op veranderende behoeften snel en eenvoudig – lees: zonder structurele ingrepen – veranderd kon worden.


Demonteerbare wanden

Voor de aanpasbaarheid zorgen demonteerbare binnenwanden gemaakt en geplaatst door Atelier Ternier, dat ook een deel van het meubilair realiseerde. De wanden bestaan uit houten stijlen die afgewerkt werden met OSB of droogbouwplaten van papiervezel. De meer prominente wanden, die de gietijzeren kolommen flankeren, werden bekleed met een MDF-plaat afgewerkt met fineerhout gemaakt van es. Door hun materialisatie komen de wanden niet alleen tegemoet aan de wens naar een aanpasbare indeling, maar ook aan de vraag om ecologische materialen te gebruiken.

Hout is echter lang niet het enige ecologische materiaal dat de architecten toepasten. Zo werden bijvoorbeeld ook kurkkorrels gebruikt, om de houtstructuur te isoleren die de vloer in de slaapkamers, badkamer en berging ophoogt.


Bezoekje aan Rotor DC

Naar de recuperatiematerialen ging het jonge koppel zelf mee op zoek, met onder meer een bezoekje aan het nabijgelegen Rotor DC. Uiteindelijk kregen onder meer wastafels, een toilet, een wastafels, een keukeneiland, planken van een oude treinwagon – toegepast als parket – en keramische tegels – gebruikt in de inkom, badkamer en berging – een tweede leven in de loft.


Uitdagingen

Een van de grootste uitdagingen voor Veldhuis en Karibu architecture school in het binnentrekken van daglicht in de loft. De ruimte strekt zich immers uit van de voor- tot achtergevel van het pakhuis en vaak resulteert zo’n lange afstand tussen voor- en achterfaçade – in dit geval 17 m – in centraal gelegen donkere bergingen en badkamers. Door de wand van de badkamer en de berging parallel aan de voorgevel echter te voorzien van een zogenaamd glazen bovenlicht, kan natuurlijk licht overdag binnenstromen in de centraal gelegen ruimtes.

De kamerhoge deuren tussen de centraal gelegen nachthal en de aangrenzende ruimtes verdwijnen helemaal in de houten wand wanneer ze openstaan en dragen zo ook bij aan het maximaliseren van daglichttoetreding. En doordat de deuren bekleed zijn met spiegels, voelt de loft zelfs wanneer die deuren gesloten zijn nog ruimtelijk aan.

Ook het streven van de architecten om de vloer in de leefruimte zo weinig mogelijk op te hogen, vormde een uitdaging. Om te slagen in hun opzet de royale vrije hoogte van 3 m met slechts enkele centimeters te reduceren, tot 2,95 m, moesten ze de tracés van diverse leidingen heel doordacht integreren in de vloer. De ontwerpers sloegen echter in dat opzet, wat niet alleen resulteerde in een ruimer aanvoelen van de ruimte, maar ook in minder materiaalgebruik, wat ook weer circulair is. Kleine opstapjes van 13 cm en een verandering van vloerbekleding definiëren subtiele overgangen tussen zowel het dag- en nachtdeel als tussen de inkomhal en de leefruimte.

De werken aan de loft, afgerond in februari van dit jaar, namen iets meer dan een jaar in beslag.

  • Deel dit artikel

Onze partners